




Vente Bureau 1 267 m²
33520 Bruges
1 267 m²
3 000 000 €
HT/HD
Disponibilité : Immédiate

Maxence DUMONT
Description
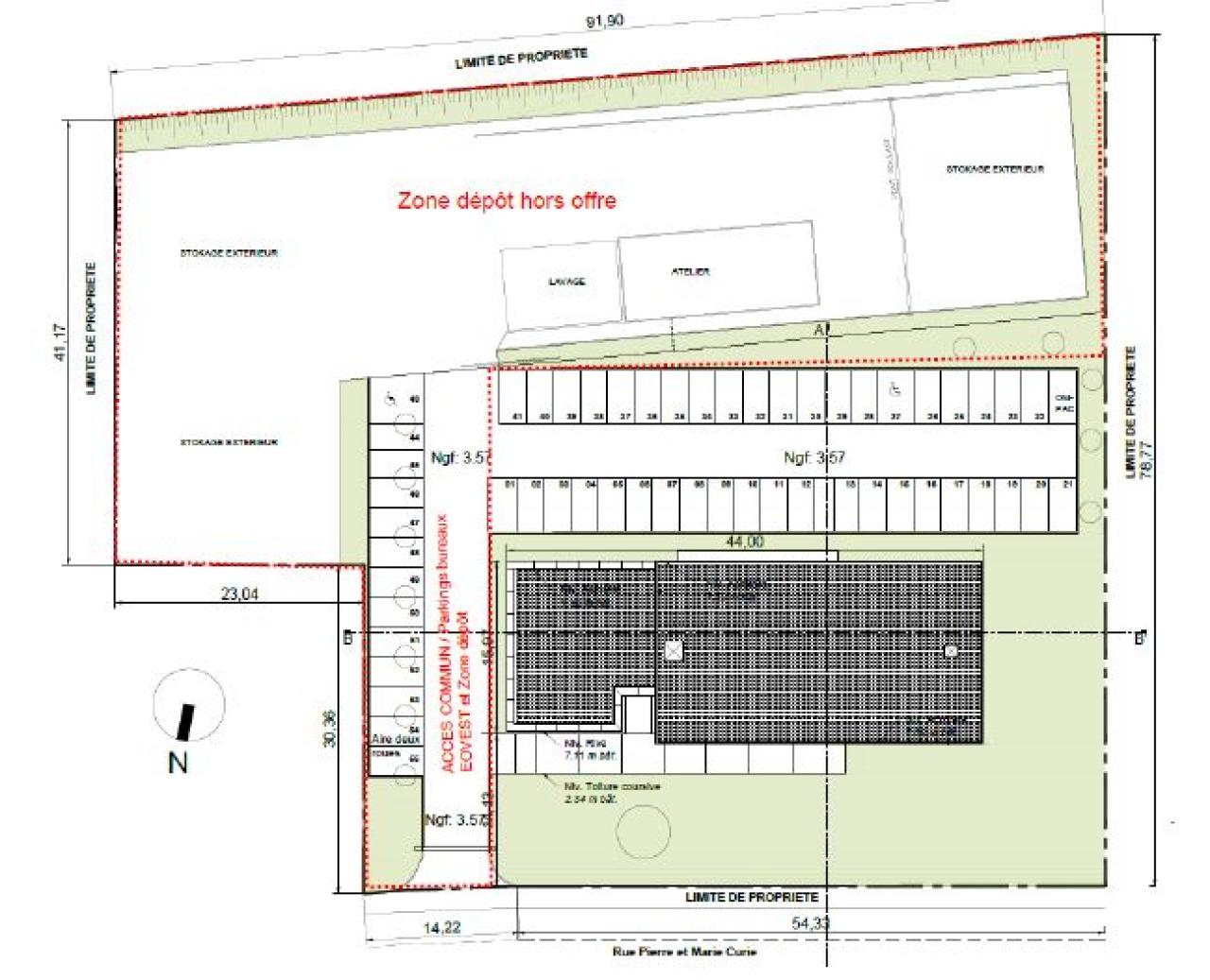
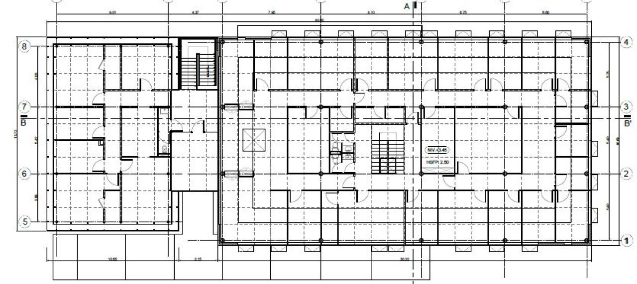
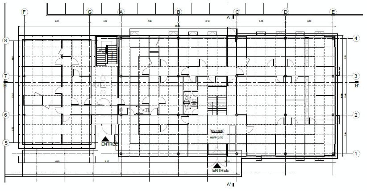
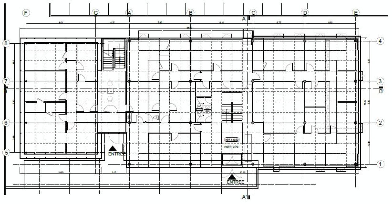
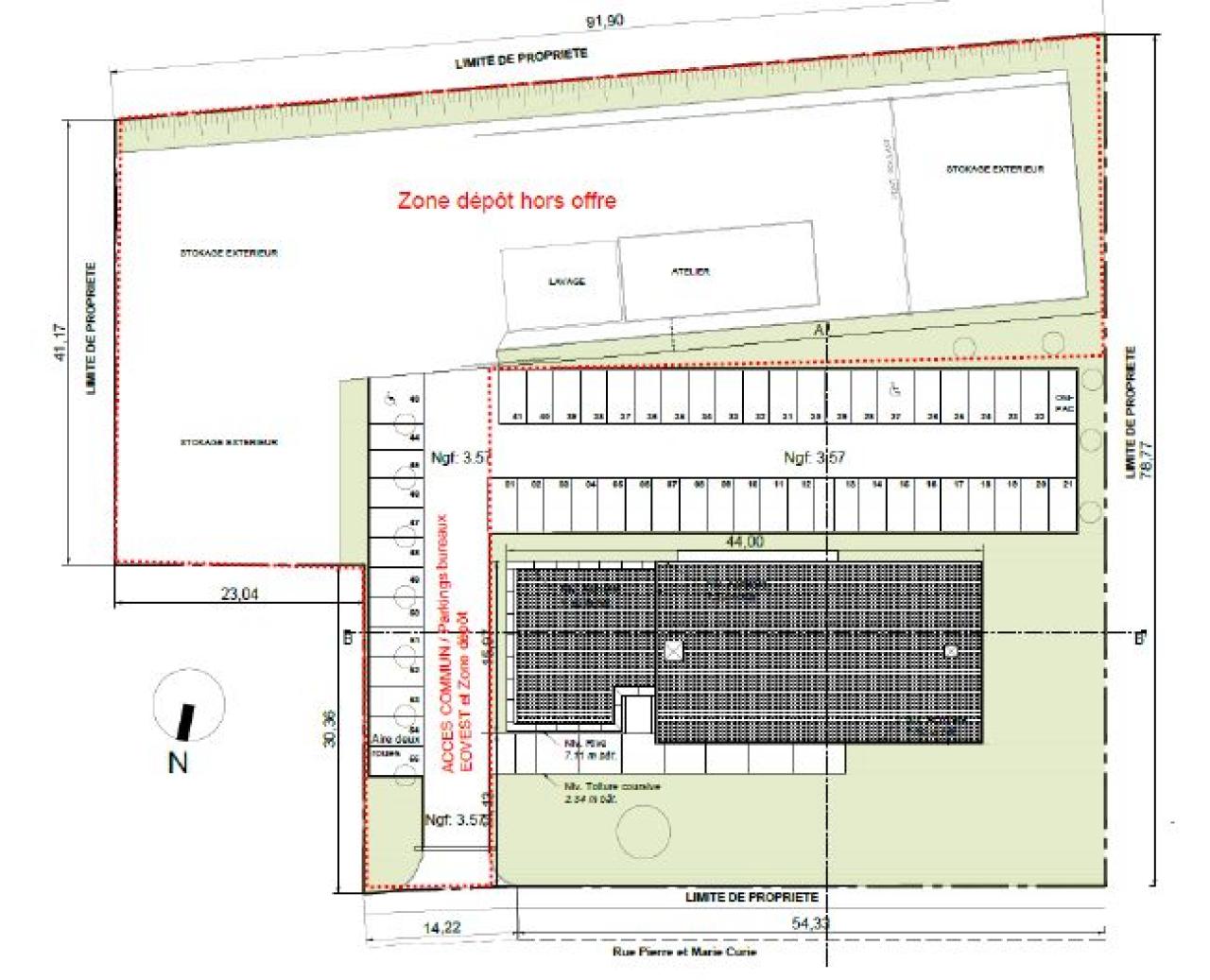
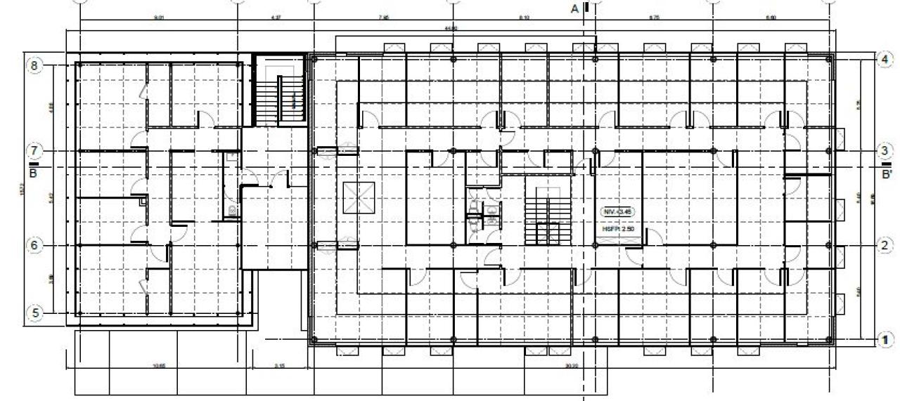
BNP PARIBAS REAL ESTATE vous propose à la vente un immeuble indépendant de bureaux sur une assiette foncière d'environ 2.780 m². Les plateaux de bureaux sont livrés en l'état avec un cloisonnement existant qualitatif. Les plateaux de bureaux possèdent deux accès depuis la coursive. Le bâtiment principal est de conception bioclimatique à ossature béton et offre une grande inertie thermique. Possibilité d'acheter en complément le terrain de derrière de 2700 m² avec 1900 m² constructibles + possibilité de créer 37 places de parkings couverts pour 500 000 €
BNP Paribas Real Estate vous propose à la vente un immeuble de bureaux indépendant disponible sur une parcelle d'environ 2 780 m². Les plateaux, accessibles via deux entrées distinctes depuis la coursive, sont livrés en l'état avec un cloisonnement de qualité, offrant une flexibilité d'aménagement pour répondre aux besoins spécifiques de votre entreprise. Le bâtiment principal, conçu selon les principes bioclimatiques avec une ossature en béton, assure une excellente inertie thermique, garantissant un confort optimal tout au long de l'année.
Une opportunité supplémentaire s'offre à vous avec la possibilité d'acquérir le terrain adjacent de 2 700 m², dont 1 900 m² sont constructibles. Cette extension potentielle permettrait la création de 37 places de parking couvertes, au prix de 500 000 €, renforçant ainsi l'attractivité et la fonctionnalité de l'ensemble immobilier.
L'immeuble est situé au sein d'une commune dynamique du Sud-Ouest de la France, est idéalement située au nord-ouest de Bordeaux, à seulement 6 km du centre-ville. Elle bénéficie d'une excellente desserte en transports en commun, notamment grâce à la ligne C du tramway avec des arrêts tels que "Cracovie" et "Gare de Bruges", facilitant les déplacements vers Bordeaux et ses environs. La gare de Bruges, desservie par les trains TER Nouvelle-Aquitaine, offre également des liaisons rapides vers les principales villes de la région. Les lignes de bus 15, 29, 33, 35, 37, 72 et 73 complètent cette offre de transport, assurant une connectivité optimale au sein de la métropole bordelaise.
La commune de Bruges est reconnu pour son cadre de vie agréable, mêlant harmonieusement espaces urbains et verdoyants. Des projets récents, comme l'aménagement de la zone "Petit-Bruges" le long des allées de Boutaut, témoignent du développement continu de la commune, avec la création de logements, de bureaux et d'espaces publics de qualité. Les rues emblématiques telles que l'avenue de la Marianne et la rue Sainte-Germaine offrent un accès facile aux commerces, services et infrastructures locales. De plus, la proximité avec des zones naturelles protégées et des espaces verts contribue à un environnement de travail serein et propice au bien-être.
Pour toutes visites ou questions, n'hésitez pas à nous contacter au 05 56 44 09 12
Services & prestations
Aménagements
-
Bureaux cloisonnés : Et adaptables
Equipements
-
Climatisation : Réversible pompes à chaleur VRV 3 tubes
Prestations de service
-
Sécurité : Contrôle d'accès et alarme anti-intrusion
Type / Etat du bâtiment
-
Etat des locaux : Etat d'usage
Informations complémentaires
-
2 accès depuis la coursive, Conception bioclimatique à ossature béton
-
Possibilité de réaliser une extension de 507 m²
-
Classement en code du travail










