




5 - 13 PLACE DE RUNGIS
75013 Paris
1 888 m²
11 000 000 €
HT/HD
Disponibilité : Immédiate

Pierre BITTON
Description
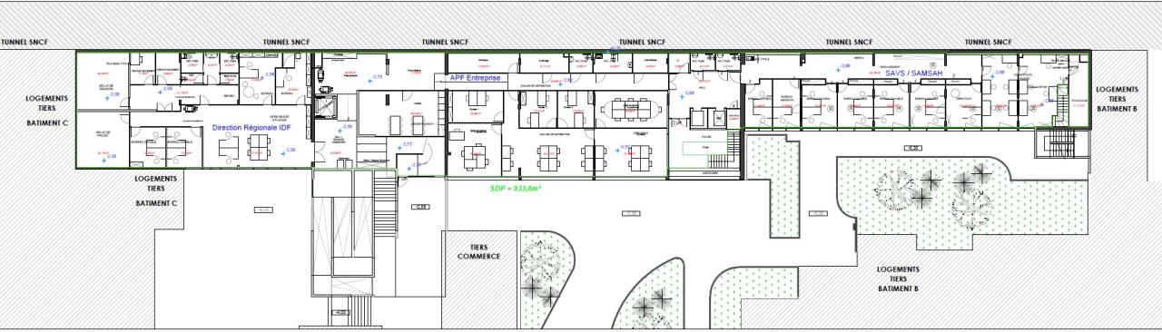
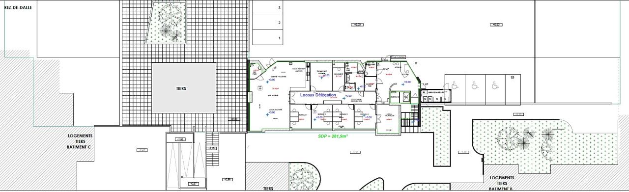
A proximité de la Cité Internationale Universitaire de Paris, du Parc Montsouris et du Stade Charlety, dans un environnement mixte agréable et dynamique offrant une accessibilité efficace, BNP Paribas Real Estate vous propose des locaux indépendants en très bon état.
Ces locaux constitués de trois plateaux à usage de bureaux et d'un local commercial offrent de bonnes prestations :
- Plusieurs accès / Accessibilité PMR
- Des surfaces modulables (cloisonnement amovible)
- Une salle de détente avec cuisine
- Possibilité ERP.
Ils disposent de 20 places de parking extérieures et d'un espace extérieur.
Services & prestations
Aménagements
-
Aménagement des bureaux : Cloisonnés/Ouverts (cloisonnement amovible)
Equipements
-
Ascenseurs
-
Faux plafond
-
Type de chauffage : Collectif
Prestations de service
-
Sécurité : Contrôle d'accès
Type / Etat du bâtiment
-
Etat de l'immeuble : Seconde main
-
Etat des locaux : Très bon état
-
Immeuble copropriété
Informations complémentaires
-
Plusieurs accès, Salle de détente avec cuisine










