




LOUVRE SAINT HONORE
153 Rue Saint-Honoré
75001 Paris
4 939 m²
Divisible dès 797 m²
Loyer sur demande
Disponibilité : Immédiate

Pascaline HARRELCOURTES
Description
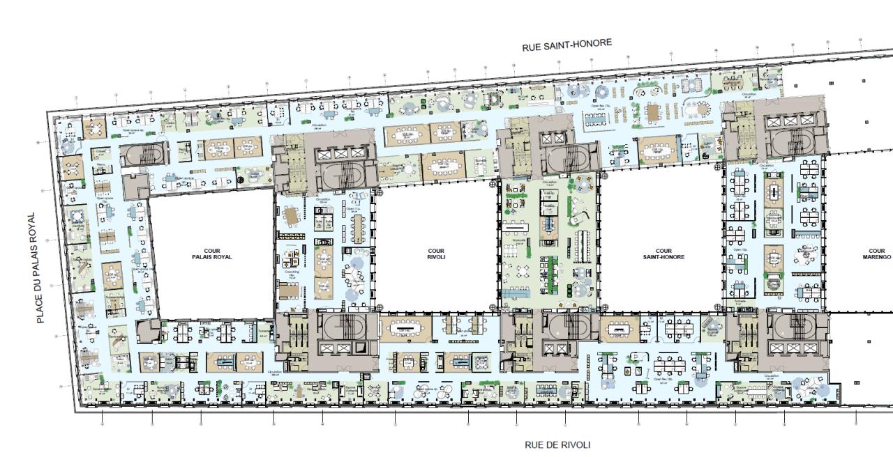
Bordé par la place du Palais Royal, la rue Saint-Honoré et la rue de Rivoli, en vis-à-vis direct du plus célèbre musée du monde, le Louvre Saint-Honoré est un ensemble immobilier au cœur du Paris historique.
Actuellement en cours de réhabilitation par Les ateliers Jean Nouvel, l’ensemble immobilier propose des surfaces de bureaux exceptionnelles, avec plateau courant de 5400m² environ, ainsi que des espaces de services signés par l’architecte d’intérieur Ana Moussinet.
QUARTIER CENTRAL DES AFFAIRES
FACE AU LOUVRE
LOCATION DE BUREAUX
GRANDS PLATEAUX RENOVES
Bordé par la place du Palais Royal, la rue Saint-Honoré et la rue de Rivoli, en vis-à-vis direct du plus célèbre musée du monde, le Louvre Saint-Honoré est un ensemble immobilier au coeur du Paris historique.
Actuellement en cours de réhabilitation par Les ateliers Jean Nouvel, l'ensemble immobilier propose des surfaces de bureaux exceptionnelles, avec plateau courant de 5400m² environ, ainsi que des espaces de services signés par l'architecte d'intérieur Ana Moussinet.
La Fondation Cartier occupera à partir de mi 2025, le socle de l'immeuble à savoir les niveaux du R-1, RDC et une partie du R+1 soit environ 17 000m² dédié à l'art contemporain.
La transformation du socle de l'immeuble est complétée par un changement en profondeur de l'expérience au sein des bureaux :
- restructuration des halls, en pierre de Saint-Maximin, par l'architecte Jean Nouvel
- création d'un espace services et d'un restaurant dessiné par Ana Moussinet,
- réalisation d'un parking vélos de dernière génération
Services & prestations
Aménagements
-
Accès Pers. Mobilité Réduite
-
Complexe Salle de réunion : 4 salle(s)
-
Effectif théorique : 608 personne(s) 196 à 216 personnes pour 2500 m²
Equipements
-
Ascenseurs
-
Climatisation
-
Câblage informatique
-
Eclairage Bureaux : Luminaires encastrés
-
Gestion technique centralisée
-
Monte-charge
-
Sol bureaux : Moquette
-
Type de chauffage : Collectif
Hauteurs
-
Hauteur sous-plafond : 3,00 mètre(s) au R+2
Prestations de service
-
Cafétéria : Au R+2
-
Capacité de restauration : 400 couverts
-
Parking : Au pied de l'immeuble
-
Restauration : Au R+1
-
Sécurité : Contrôle d'accès 24h00 sur 24, Contrôle d'accès lecteur de badge, PC Sécurité, Vidéo-surveillance
Normes, Certifications et Labels
-
Certification : BREEAM In Use
Type / Etat du bâtiment
-
Etat de l'immeuble : Rénové ensemble prestigieux
-
Orientation façade : SUR RUE
-
Type d'immeuble
Informations complémentaires
-
Douches/vestiaires










