




26 Rue des Petites Écuries
75010 Paris
215 m²
418 €
HT/HC/m²/an
Disponibilité : 01/01/2026

Quentin THORE
Description
Location Bureaux Paris 10 Petites Ecuries Atypique Verrière Terrasse Extérieur Pierre Apparente
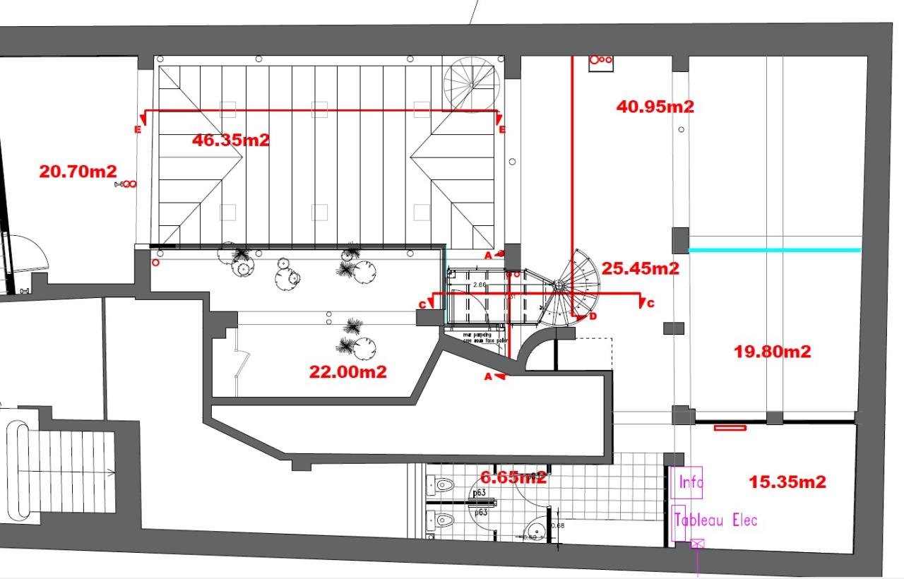
BNP Paribas Real Estate a le plaisir de vous présenter en exclusivité, un magnifique local atypique sous verrière niché au sein d'une copropriété typiquement parisienne . Les locaux en très bon état d'usage, ont fait l'objet il y a quelques années d'une rénovation très grande qualité par des architectes avec 3 mètres de hauteur sous plafond, pierre apparente, escalier sur mesure… L'espace se compose actuellement d'un open space de 19 postes, 2 salles de réunion, 1 phone box, 1 cuisine, 2 sanitaires et un local archives/baie de brassage. Enfin, les bureaux bénéficient d'une terrasse extérieure.
À LOUER BUREAUX ATYPIQUES SOUS VERRIÈRE PARIS 10e / RUE DES PETITES ÉCURIES
Coup de coeur assuré !
Au coeur du 10e arrondissement, dans la très recherchée rue des Petites Écuries, découvrez ces bureaux atypiques au charme unique, installés sous une superbe verrière avec 3 mètres de hauteur sous plafond et murs en pierre apparente.
L'espace se compose de :
Un grand open space pouvant accueillir jusqu'à 19 postes,
Une salle de réunion vitrée,
Une seconde salle voûtée avec puits de lumière,
Une phone box,
Deux sanitaires,
Une cuisine équipée,
Un local archives avec baie de brassage,
Et une terrasse privative un véritable plus au coeur de Paris !
Les bureaux sont également équipés d'une centrale de traitement d'air, assurant un excellent confort pour vos équipes.
Un lieu lumineux, convivial et inspirant, idéal pour une start-up, une agence créative ou tout cabinet souhaitant un cadre de travail stimulant et atypique.
Localisation premium, proche des transports et de tous commerces.
Offre rare sur le marché à visiter rapidement !
Contact :
Quentin Thoré
07 85 63 05 18
01 72 37 29 55
quentin.thore@realestate.bnpparibas
Services & prestations
Aménagements
-
Aménagement des bureaux : Espaces Ouverts
-
Complexe Salle de réunion : 1 salle(s)
-
Salle informatique : Baie de brassage
-
Sanitaires : 2 Privatif(s)
Equipements
-
Câblage informatique
-
Eclairage Bureaux : Luminaires suspendus
-
Fenêtres : Verrière double vitrage
-
Plinthes techniques périphériques
-
Sol bureaux : Moquette
-
Source chauffage : Gaz
-
Type de chauffage : Individuel
Hauteurs
-
Hauteur sous-plafond : 3,00 mètre(s)
Prestations de service
-
Sécurité : Contrôle d'accès
Extérieurs
-
Terrasses - jardins : 11,40 m² de terrasse privative
Informations complémentaires
-
CTA










