




32 Rue de Paradis
75010 Paris
393 m²
450 €
HT/HC/m²/an
Disponibilité : 01/01/2026

Quentin THORE
Description
Location de bureaux Paris 10 Accueil Gardien Climatisation Réversible Paradis Hauteville Gare du Nord Gare de l'Est Grands Boulevards
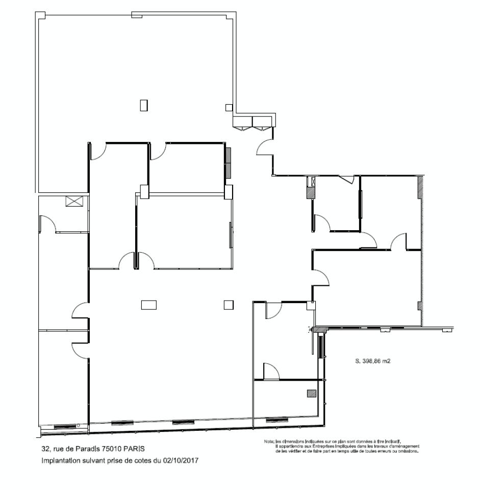
BNPPRE vous propose en co-ex à la location, une belle surface de bureaux d'environ 392 m² au sein d'un immeuble emblématique du secteur Paradis/Hauteville. Il est accessible aux PMR et dispose d'une hôtesse d'accueil et d'un PC sécurité. Les locaux traversants et lumineux, sont situés au 1er étage et sont accessibles par 3 ascenseurs. L'aménagement actuel dispose d'1 open space de 18 p, un open de 6 p densifiable, 4 salles de réunion, 5 bureaux ainsi qu'1 cuisine. La surface dispose de la clim réversible et vous trouverez en sous-sol 3 places de parking et 22 m² d'archives.
Services et Prestations :
- Immeuble tertiaire de bon standing
- Hôtesse d'accueil
- PC sécurité
- Parties communes en bon état : rénovation en cours de la cour extérieure. Electricité neuve. Désenfumage à venir.
- Ascenseurs
- Monte-charge
- Surface traversante, lumineuse et modulable
- Un espace accueil, réception client
- Un open space de 18 postes
- Un open space de 6 postes possibilité d'en rajouter
- Densification possible entre 50 et 65 postes
- 4 salles de réunion
- 5 bureaux fermés
- Une cuisine ouverte
- Sol PVC
- Climatisation réversible immeuble incluse dans les charges. Cassettes de ventilation neuves
- Câblage informatique RJ45
- Luminaires encastrés
- Sanitaires et douches en parties communes rénovés en 2024
- 27 m² d'archives en sous-sol
- 2 parkings voitures en sous-sol
Surface bureaux : 392,89 m²
Loyer bureaux : 450 / m² / an HT HC
Surface archives : 21,70 m²
Loyer archives : 250/m²/an HT HC
3 places de stationnement
Loyer parking : 1400/unité/an HT
Charges : 45 880,76 / an HT incluant électricité, chauffage, climatisation, entretien des parties communes, accueil, pc sécurité, ascenseurs
Dépôt de garantie : 3 mois de loyer HT
Taxe foncière : 14 357/an HT incluant la TEOM
Taxe bureaux : 10 124,77 /an HT
Type de bail : Commercial 3/6/9 ans
Disponibilité : 01/01/2026
Honoraires de commercialisation : 15% HT du loyer annuel HT HC à la charge du preneur
Quentin Thoré
07 85 63 05 18
01 72 37 29 55
quentin.thore@realestate.bnpparibas
Services & prestations
Aménagements
-
Accueil : 1 Hôtesses
-
Accès Pers. Mobilité Réduite
-
Aménagement des bureaux : Cloisonnés/Ouverts locaux lumineux, décloisonnement possible
-
Bureaux cloisonnés : 5 bureau de direction
-
Complexe Salle de réunion : 4 salle(s)
-
Sanitaires
Equipements
-
Ascenseurs : 6 PMR
-
Climatisation : Réversible Immeuble ; Blocs de ventilation neufs
-
Câblage informatique : RJ 45 - baie de brassage climatisée
-
Douche : 2
-
Eclairage Bureaux : Luminaires encastrés
-
Faux plafond
-
Fenêtres
-
Sol bureaux : Dls.thermoplastiques
-
Type de chauffage : Collectif
Hauteurs
-
Hauteur sous-plafond : 2,60 mètre(s)
Prestations de service
-
Parking : 3 Places
-
Sécurité : Contrôle d'accès télésurveillance, gardiennage, pc sécurité
Normes, Certifications et Labels
-
Catégorie ERP : ERP possible
Type / Etat du bâtiment
-
Etat de l'immeuble : Etat d'usage
-
Etat des locaux : Rénové plateau lumineux sans contrainte porteuse
-
Immeuble copropriété : Parties communes extérieures en cours de rénovation
Informations complémentaires
-
Locaux rationnels, modulables










