




52 Rue Jacques Hillairet
75012 Paris
2 023 m²
Divisible dès 91 m²
461 €
HT/HC/m²/an
Disponibilité : 10/06/2022

Camille BRUZEAU
Description
BNP Paribas Real Estate vous propose à la location différents plateaux de bureaux rénovés et climatisés dans un immeuble avec services (hôtesse, RIE, cafétéria, cour intérieure, parkings, auditorium).
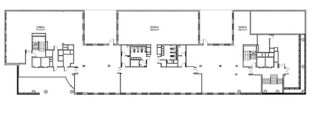
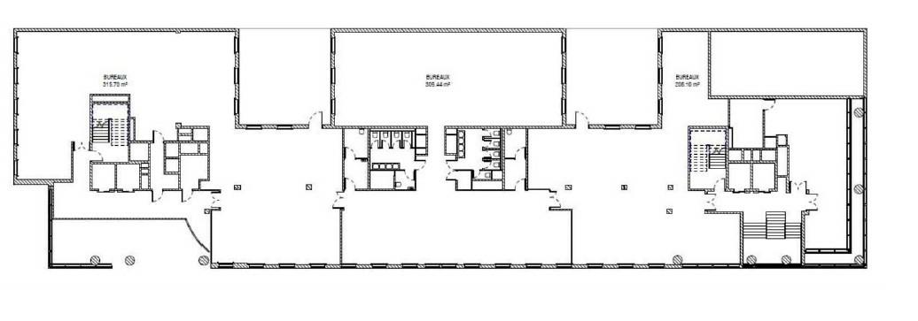
- R+1 : 91m², 308m², 440m²
- R+2 : 1 182m² divisibles : 516 m², 551 m², 627 m² ou 662 m²
RIE : 22 € HT/m²/an
Environnement calme et commerçant. Jardin de Reuilly et Square Saint Eloi à 350m.
Place de la Nation à 10 min à pieds. Offre à ne pas manquer, disponible immédiatement.
BNP Paribas Real Estate vous propose à la location différents plateaux de bureaux rénovés et climatisés dans un immeuble avec services (hôtesse, RIE, cafétéria, cour intérieure, parkings, auditorium).
- R+1 : 91m², 308m², 440m²
- R+2 : 1 182m² divisibles : 516 m², 551 m², 627 m² ou 662 m²
Services et Prestations :
- Hôtesse d'accueil
- RIE / Cafétéria
- Parkings en sous-sol : 52 places dont 14 électriques
- Espace extérieur
- Contrôle d'accès par badge
- Auditorium à la disposition des locataires
Loyer : 470 /m²/an HT HC
Loyer RIE (obligatoire) : 22/m²/an HT
Provisions pour charges : 85,33/m²/an
Taxe foncière : 30,67/m²/an (TEOM comprise)
Taxe bureaux : 21,31/m²/an
Taxe parking : 7,75 HT/emplacement/an
Frais de rédaction d'actes : 2 000 HT
Services & prestations
Aménagements
-
Accueil : Double accès rue Jacques Hillairet et rue Hénard
-
Aménagement des bureaux : Cloisonnement amovible
Equipements
-
Faux plafond
Prestations de service
-
Sécurité : Contrôle d'accès système d'alarme
Type / Etat du bâtiment
-
Etat des locaux : Rénové
Informations complémentaires
-
Portail automatique










