




Location Bureau 103 m²
75015 Paris
103 m²
420 €
HT/HC/m²/an
Disponibilité : Immédiate

Gersende MAGAND
Description
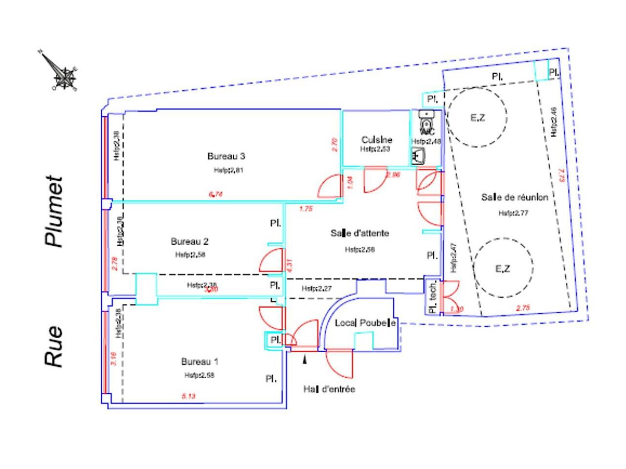
>> 5 RUE PLUMET - PARIS 15
RdC - 103 m² proximité Immédiate métro Volontaires
BNP RE vous propose à la location une surface de bureau en RDC de 103 mètres carrés en plein 15ème, quartier Necker proche Montparnasse.
La station Volontaires, ligne 12 est à 4 minutes à pied.
La surface est divisée en trois bureaux et une salle de réunion.
BNP RE vous propose à la location une surface de bureau en RDC de 103 mètres carrés en plein 15ème, quartier Necker proche Montparnasse.
La surface est divisée en trois bureaux et une salle de réunion, une cuisine et WC.
Les locaux sont équippés de la fibre ainsi que d'une baie de brassage.
Proche ligne 12 de la station Volontaires 4 minutes et à 15 minutes à pied la gare montparnasse, les bureaux benéficient d'une très bonne situation géographique.
Services & prestations
Aménagements
-
Aménagement des bureaux : Cloisonnés
-
Sanitaires
Equipements
-
Climatisation
-
Câblage informatique
-
Eclairage Bureaux : Luminaires encastrés
-
Faux plafond
-
Sol bureaux : Carrelage
-
Type de chauffage : Collectif
Prestations de service
-
Cafétéria : Cuisine
-
Sécurité : Contrôle d'accès et volets roulants, Oui
Type / Etat du bâtiment
-
Etat de l'immeuble : Seconde main
-
Etat des locaux : Etat d'usage
-
Immeuble copropriété










