




CARRE VAUGIRARD
251 Rue de Vaugirard
75015 Paris
4 486 m²
Divisible dès 560 m²
680 €
HT/HC/m²/an
Disponibilité : Immédiate

Berengere PETIT
Description
CARRE VAUGIRARD - un immeuble serviciel d'exception en plein cœur du 15ème arrondissement de Paris.
Dans un quartier vivant et dynamique du 15ème arrondissement de Paris, nous vous proposons plusieurs surfaces de disponibles.
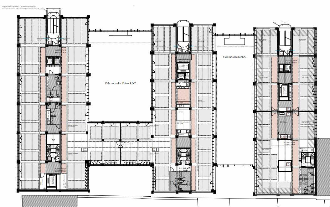
Les locaux font l'objet d'une restructuration complète et de qualité. L'ensemble immobilier comprend 3 bâtiments dont 1 qui sera utilisé par la FNMF.
Le bâtiment bénéficie d'un socle serviciel conséquent avec des salles de réunions, un service de restauration, un auditorium, un jardin et un atrium. La livraison du bâtiment sera effective en juin 2025.
Un bel espace de services au RDJ est dédié aux Utilisateurs de l'immeuble avec des salles de réunions, un auditorium, un espace accueil, un atrium et un jardin d'hiver donnant accès aux deux autres bâtiments. Un parking attenant sur 3 niveaux de sous-sol sera dédié aux utilisateurs.
Dans cet ensemble immobilier, il y a une zone classée "ERP 3" comprenant, entre autres, un auditorium de 199 places et une salle de réunion annexe de 80 places.
Les plateaux de bureaux seront flexibles, lumineux et efficaces. La restructuration du site est géré par l'architecte RUDY RICCIOTTI.
Eléments généraux de programmation ;
L'immeuble est classé Code du Travail excepté l'auditorium, les salles de réunion et l'espace accueil.
Les plateaux de bureaux sont conçus de manière très efficaces afin de permettre à l'Utilisateur d'organiser ses aménagements en paysage ou avec un cloisonnement dans le cadre de la réglementation.
Les niveaux sont pourvus d'un faux-plancher technique, présentant une hauteur libre comprise entre 36 et 53 cm sous dalle permettant, outre le réseau, d'amener l'air neuf, la distribution électrique et informatique en faux-plancher.
Tous les plateaux sont accessibles aux personnes handicapées.
Surfaces et effectifs ;
La distribution intérieure des bureaux est prévue selon les règles du compartimentage et la réglementation en vigueur ; pour les plateaux de bureau, le principe de désenfumage naturel par balayage de façade à façade a été retenu. Les espaces communs sont équipés d'un système de désenfumage mécanique.
Certifications environnementales ;
Les bâtiments sont conçus, réalisés et gérés selon une démarche de haute qualité environnementale (HQE). L'objectif de certification et de labellisation est la certification HQE Bâtiment Durable 2016, niveau « Excellent », et classe C pour la partie acoustique (référentiel V3 de janvier 2019). En outre, les critères de certification BREEAM et WIREDSCORE sont pris en compte dans la conception et l'exécution des travaux.
Services & prestations
Aménagements
-
Effectif théorique : 1323 personne(s)










