




Location Bureau 1 195 m²
75002 Paris
1 195 m²
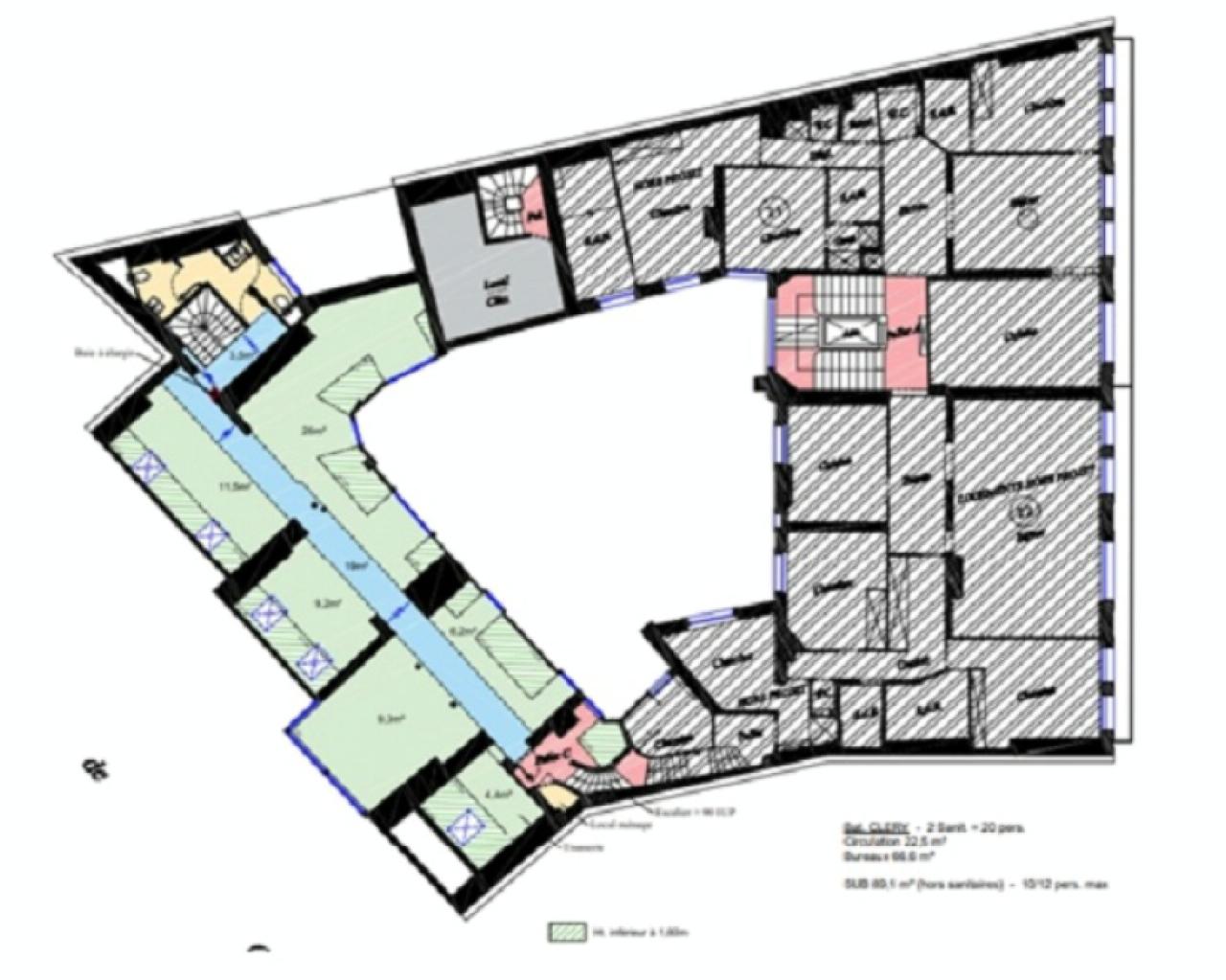
Divisible dès 249 m²
Loyer sur demande
Disponibilité : Immédiate

Caroline DE MONCAN
Description
A toute proximité de la Place de la Bourse, BNP PRE vous propose environ 1 569 m² de bureaux livrés rénovés divisibles à partir de 249 m².
L'immeuble propose une double entrée sur rue Réaumur et rue de Cléry. L'immeuble a fait l'objet d'une refonte du hall et de son rez-de-chaussée pour proposer des services communs (salle de fitness, local vélo, espace lounge).
Les surfaces présentent très peu de contrainte porteuse et de belle hauteur sous plafond.
Services & prestations
Aménagements
-
Complexe Salle de réunion
Equipements
-
Ascenseurs
-
Climatisation
Hauteurs
-
Hauteur sous-plafond
Prestations de service
-
Sécurité : Gardiennage
Type / Etat du bâtiment
-
Etat des locaux : Rénové
Informations complémentaires
-
1 cuisine, Fibre optique










