




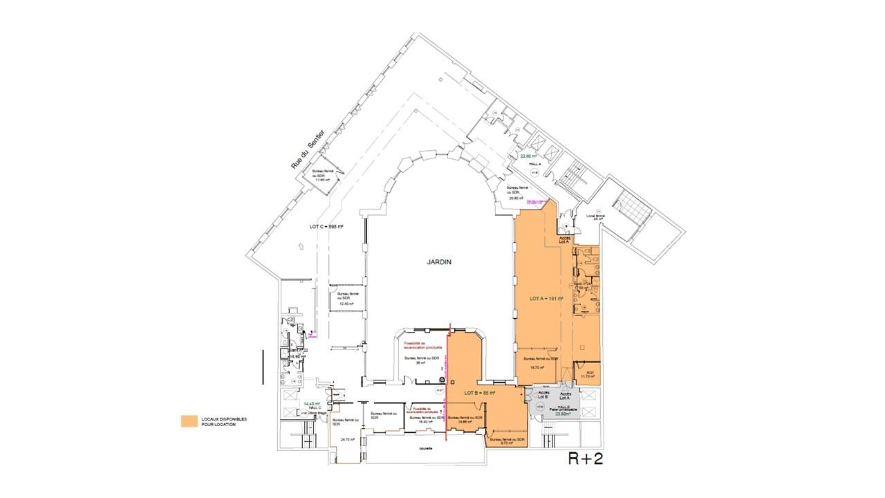
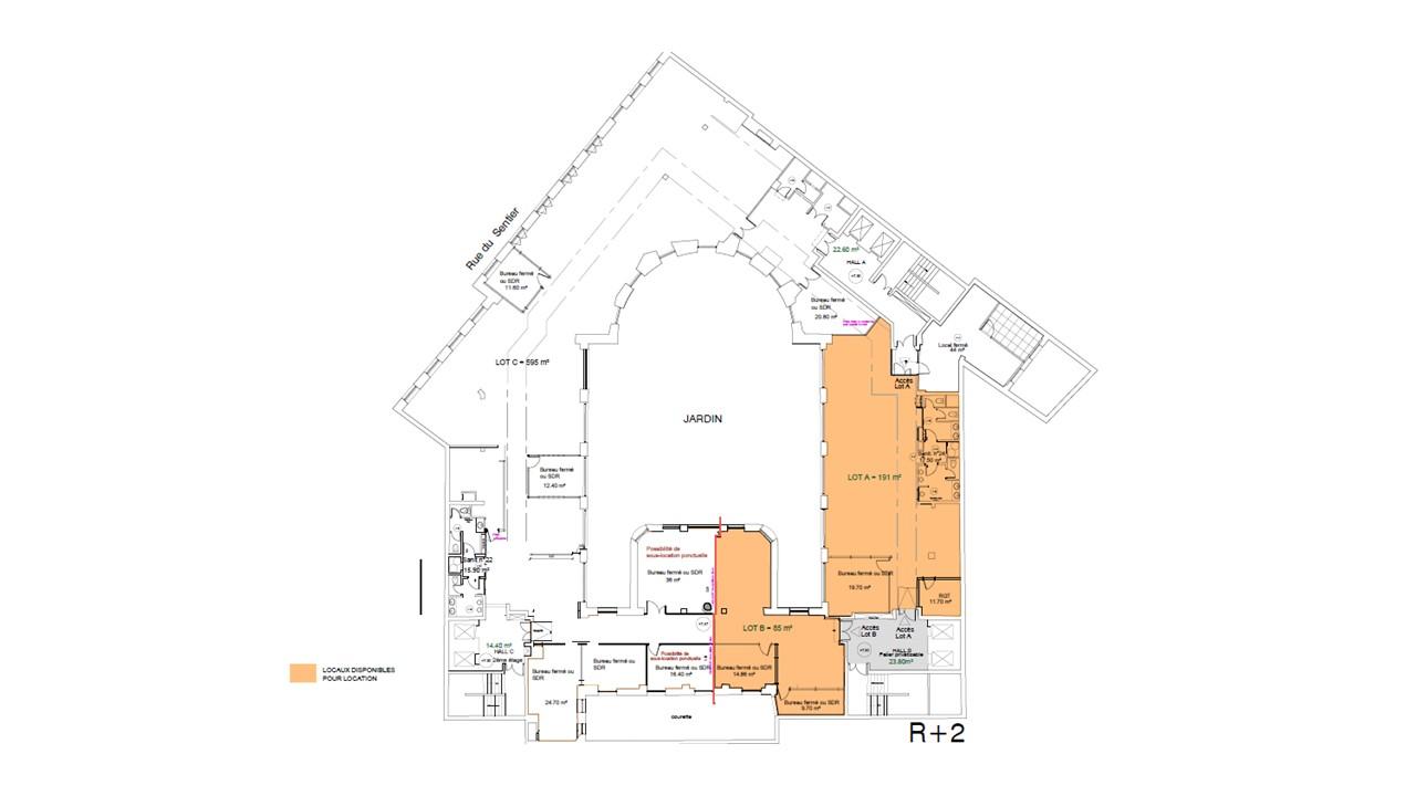
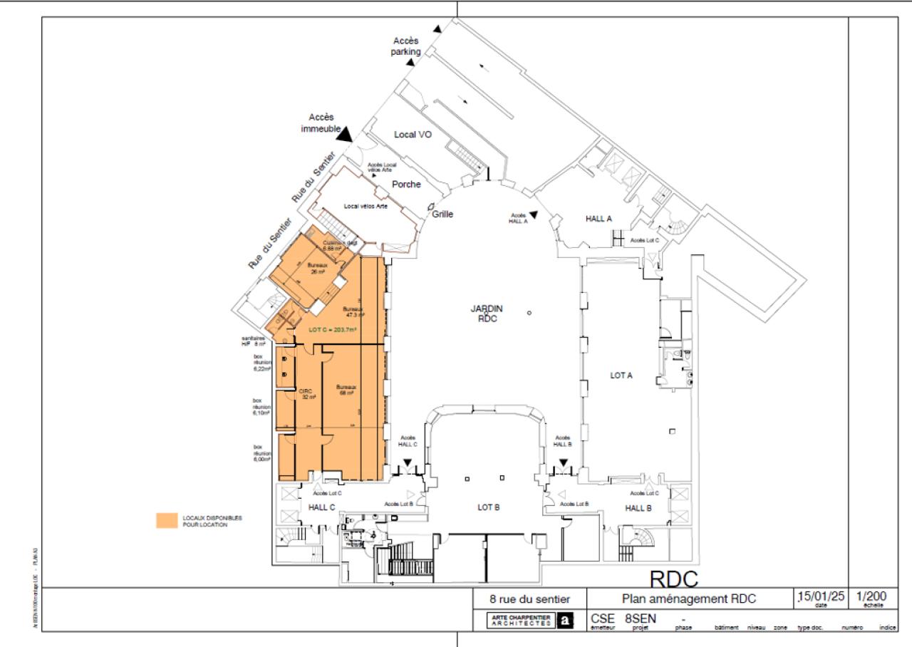
8 Rue du Sentier
75002 Paris
317 m²
550 €
HT/HC/m²/an
Disponibilité : Immédiate

Mathilde BURLOT
Description
BNPRE vous propose deux surfaces en sous location dans un immeuble de standing.
Au coeur du Sentier, BNPRE vous propose deux surfaces de bureaux de 317 m² en sous location. Ces locaux sont situés respectivement au 2ème étage d'un immeuble de standing. Ils sont lumineux et proposent une grande flexibilité d'aménagement. Une reprise du mobilier est aussi possible.
Services & prestations
Aménagements
-
Accueil
-
Sanitaires : Privatif(s)
Equipements
-
Ascenseurs
-
Climatisation : Réversible
-
Câblage informatique : Et téléphonique
-
Faux plafond
-
Sol bureaux : Parquet
Hauteurs
-
Hauteur sous-plafond : Belle hauteur
Prestations de service
-
Sécurité : Gardiennage Contrôle d'accès avec digicode et interphone
Normes, Certifications et Labels
-
Catégorie ERP : ERP 5
Type / Etat du bâtiment
-
Orientation façade : SUR RUE
Informations complémentaires
-
Fibre optique, Grand espace détente avec cuisine, Immeuble ancien restructuré, Parties communes de bon standing, Une cuisine
-
Beaux volumes/Surface lumineuse, Cour intérieure arborée, Décloisonnement possible
-
Espaces ouverts










