




178 Rue Montmartre
75002 Paris
2 362 m²
850 €
HT/HC/m²/an
Disponibilité : 01/02/2026

Pascaline HARRELCOURTES
Description
Paris 2ème, à la frontière du 9ème arrondissement, à l’angle du Boulevard Poissonnière, au 178 rue Montmartre, dans ce bel immeuble haussmannien, nous vous proposons à la location environ 2 362 m² de bureaux répartis du R+1 au R+6.
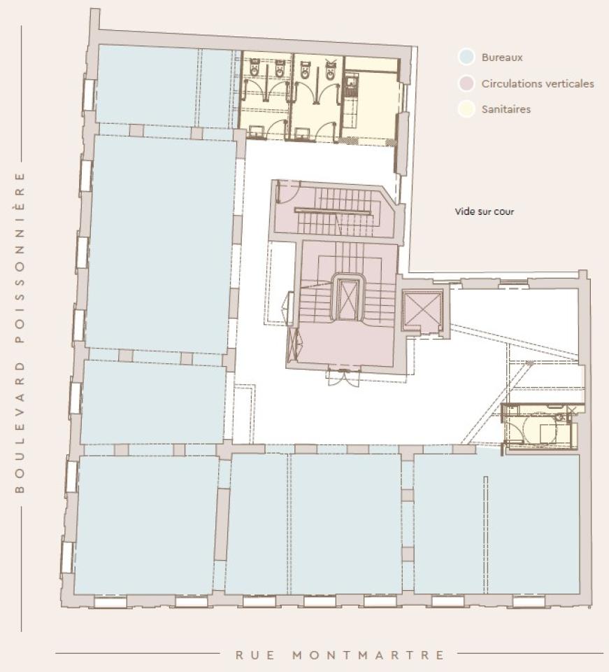
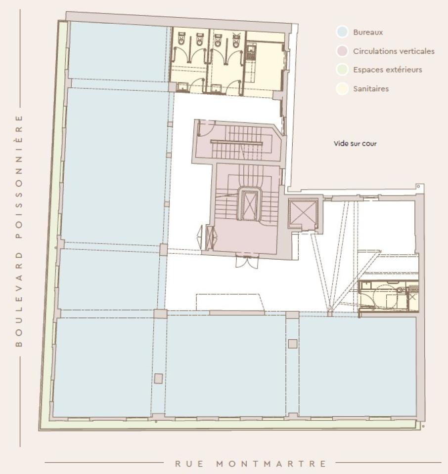
Les plateaux courants d’environ 370 m² offrent des volumes de bureaux intégralement en premier jour et permettent un aménagement flexibles en open space ou en bureaux cloisonnés.
Le 6ème étage sous-penté laisse apparaître de belles poutres en bois.
LOCATION DE BUREAUX Paris 2ème
Angle Boulevard Poissonnière
Métro Grands Boulevards
Proximité Richelieu Drouot
2 362 m² de bureaux à louer répartis du rdc au R+6.
Les bureaux seront entièrement rénovés : décret tertiaire 2030/2040, labels, climatisation réversible, capacitaire 1/11 personnes, très belle HSP à tous les étages (2,8 m à 3,10 m).
Plateaux courants d'environ 370 m² - 100% des bureaux en premier jour permettent un aménagement flexible en open space ou en bureaux cloisonnés.
Le 6ème étage sous-penté laisse apparaître de belles poutres en bois.
PRESTATIONS
1 Ascenseur
1 monte-charge (dans la cour)
Climatisation réversible
Faux plafond
Moquette
Disponibilite : Février 2026
LIVRAISON
Janvier 2026
Services & prestations
Aménagements
-
Accueil
-
Aménagement des bureaux : Cloisonnés/Ouverts
-
Effectif théorique : 201 personne(s) 1/11
Equipements
-
Ascenseurs
-
Climatisation : Réversible
-
Faux plafond
-
Faux plancher
-
Monte-charge : Dans la cour
-
Sol bureaux : Moquette
Hauteurs
-
Hauteur sous-plafond : Entre 2,80 et 3,10 m
Extérieurs
-
Terrasses - jardins : Balcons
Normes, Certifications et Labels
-
Certification : BREEAM
Type / Etat du bâtiment
-
Etat de l'immeuble : Rénové
-
Immeuble indépendant
Informations complémentaires
-
Poutres apparentes au R+6
-
100 % de bureaux en 1er jour










