




52 Rue de Monceau
75008 Paris
1 523 m²
1 000 €
HT/HC/m²/an
Disponibilité : Immédiate

Sophie HENON
Description
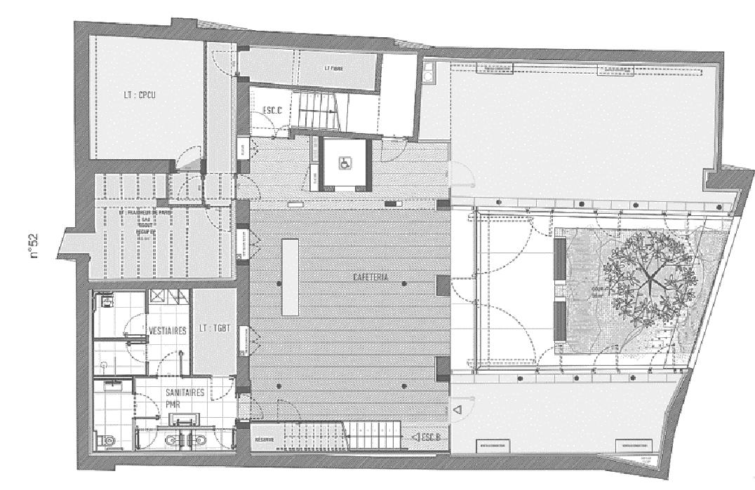
A toute proximité du Parc Monceau, nous vous proposons à la location un hôtel particulier de grand standing développant environ 1.523 m² sur 6 niveaux. L’immeuble a l’objet d’une lourde restructuration. La création d’une façade vitrée sera installée sur les rez-de-jardin et rez-de-chaussée en partie arrière de l’immeuble apportant de la lumière naturelle. Ces 2 niveaux élargis et bénéficient d’une gamme complète et qualitative de services avec des mesures conservatoires pour l’installation d’un auditorium, d’un espace fitness, d’une cafétéria connectée, de salles de réunion
QUARTIER CENTRAL DES AFFAIRES ETOILE
LOCATION DE BUREAUX
IMMEUBLE INDEPENDANT
HOTEL PARTICULIER
1523 m² DE BUREAUX A LOUER
Le tout est ERP W5 et donnera sur un joli jardin en pleine terre.
Flexibilité et efficacité des plateaux.
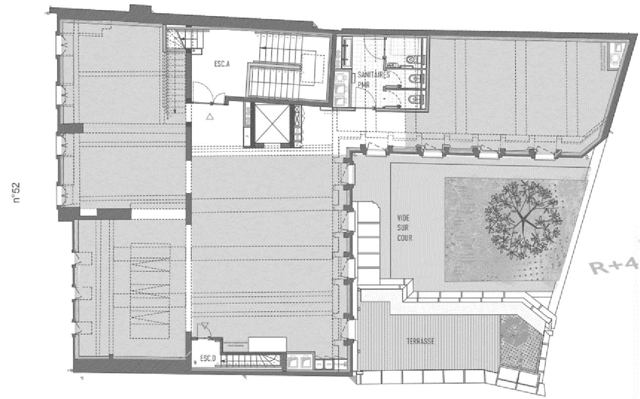
Très belle hauteur sous plafond aux R+1 et R+2 (3,50m)
Eléments patrimoniaux conservés au 2è étage.
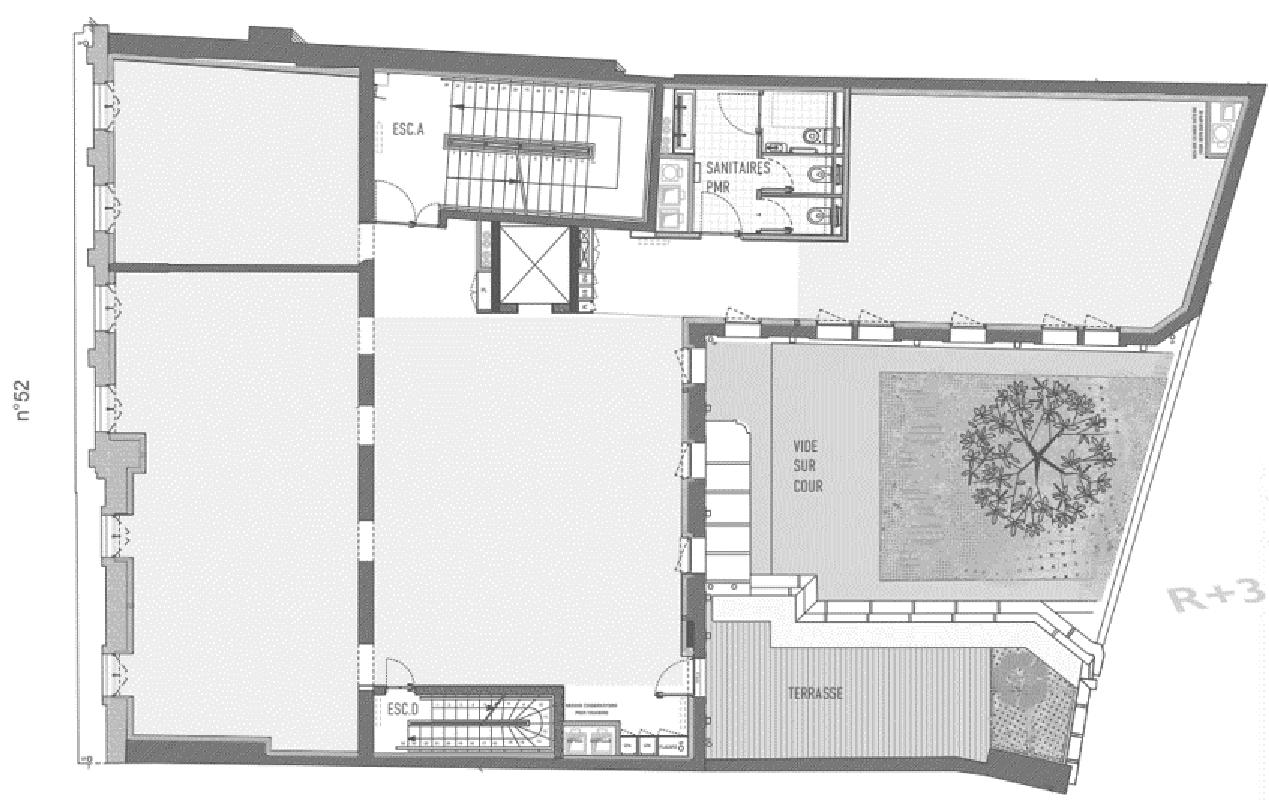
Terrasse végétalisée et accessible au 3è étage.
La restructuration vise le respect du décret tertiaire 2040 ainsi que de nombreux labels.
DISPONIBILITE IMMEDIATE
Services & prestations
Aménagements
-
Accueil
-
Aménagement des bureaux : Cloisonnés/Ouverts
-
Hall d'accueil
Equipements
-
Ascenseurs
-
Climatisation
-
Faux plafond
Extérieurs
-
Terrasses - jardins : Patio intérieur d'environ 68 m² en RDJ
Type / Etat du bâtiment
-
Etat de l'immeuble : Rénové
-
Etat des locaux : Restructuré avec PC
-
Immeuble indépendant
-
Orientation façade : SUR RUE
-
Type d'immeuble : Hôtel particulier
Informations complémentaires
-
Moulures et boiseries 2e étage dans certains bureaux










