




109 Boulevard Haussmann
75008 Paris
232 m²
841 €
HT/HC/m²/an
Disponibilité : Immédiate

Jerome LARROUSSE
Description
Bureaux de très haut standing - 232 m² sur trois niveaux
BNPPRE vous propose des bureaux de très haut standing, climatisés et en parfait état, au coeur d'un immeuble haussmannien de caractère. Développant 232 m² sur trois niveaux, les espaces conjuguent volumes ouverts, élégance architecturale et grande liberté d'aménagement, avec un accès indépendant sur rue et un accès complémentaire par les parties communes. Une adresse idéale pour des entreprises en quête d'image, de confort et de flexibilité.
Prestations :
Très bel immeuble d'angle haussmannien
Parties communes de très bon standing
Locaux d'exception rénovés
Entrée privative sur rue
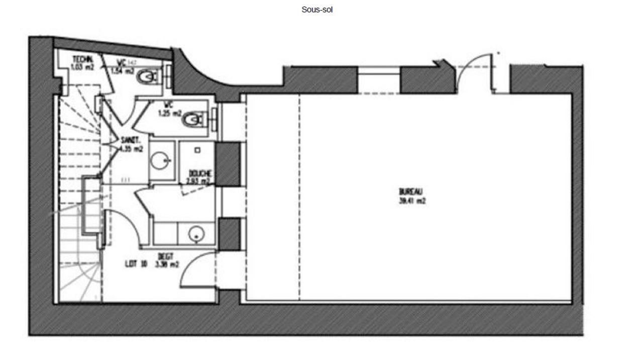
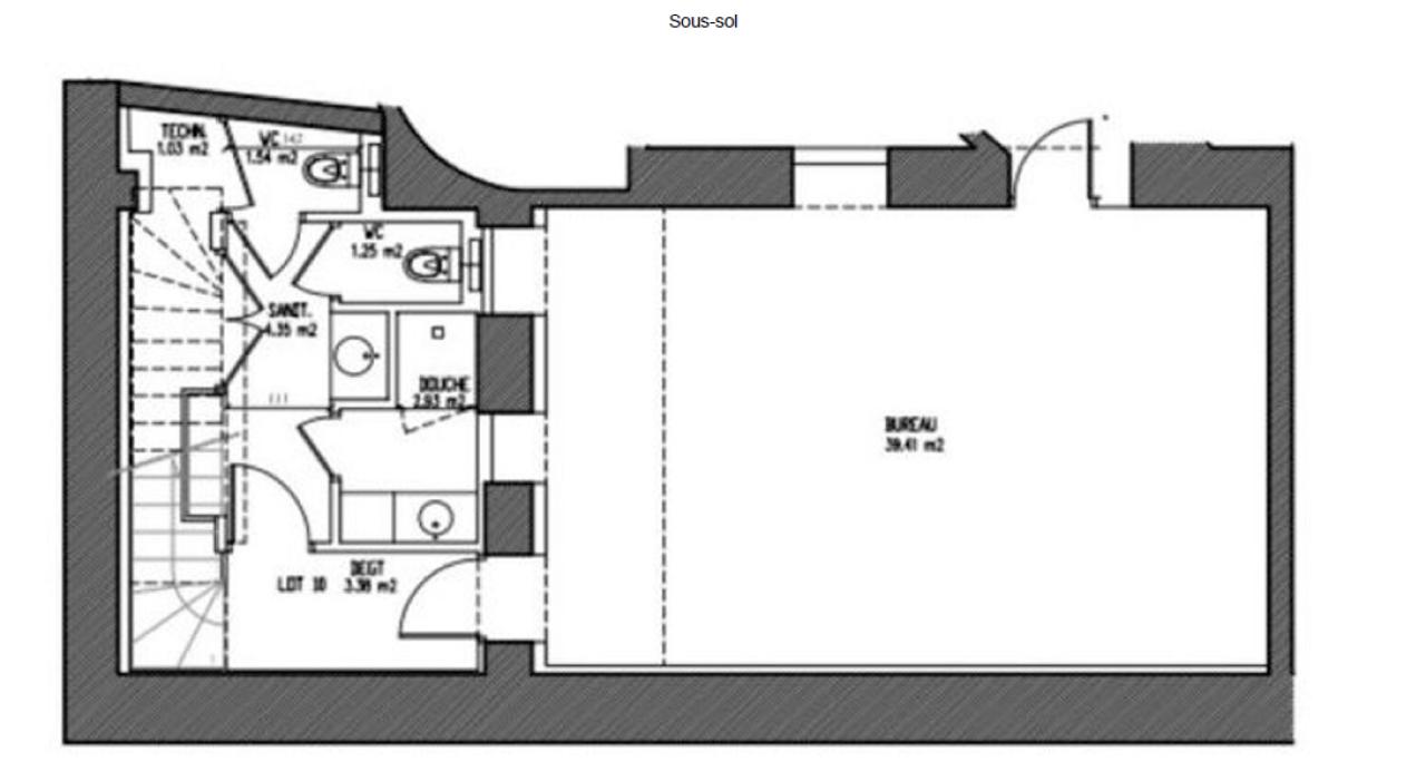
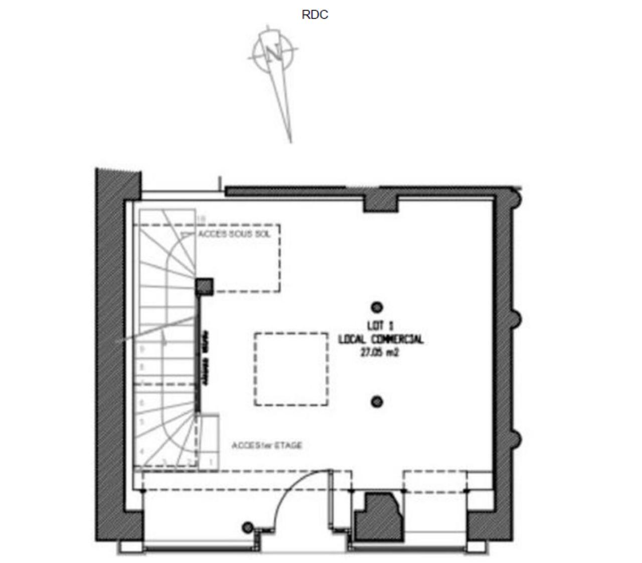
Surface organisée comme suit :
- Niveau 1 : 2 espaces ouverts et 1 beau bureau d'angle, 1 kitchenette, 2 sanitaires
- Niveau RDC : 1 bureau avec 1 accès direct sur rue et 2 sanitaires
- Niveau -1 : 1 salle de réunion, 2 sanitaires et 1 salle d'eau
- Accès PMR : Oui
- Climatisation
Services & prestations
Type / Etat du bâtiment
-
Etat des locaux : Très bon état










