




Location Bureau 2 974 m²
75008 Paris
2 974 m²
Divisible dès 2 345 m²
Loyer sur demande
Disponibilité : 01/09/2026

Olivier MACON
Description
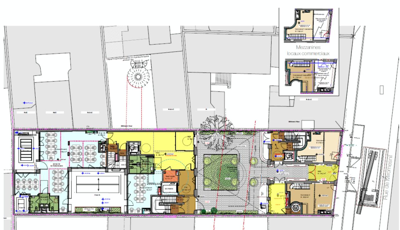
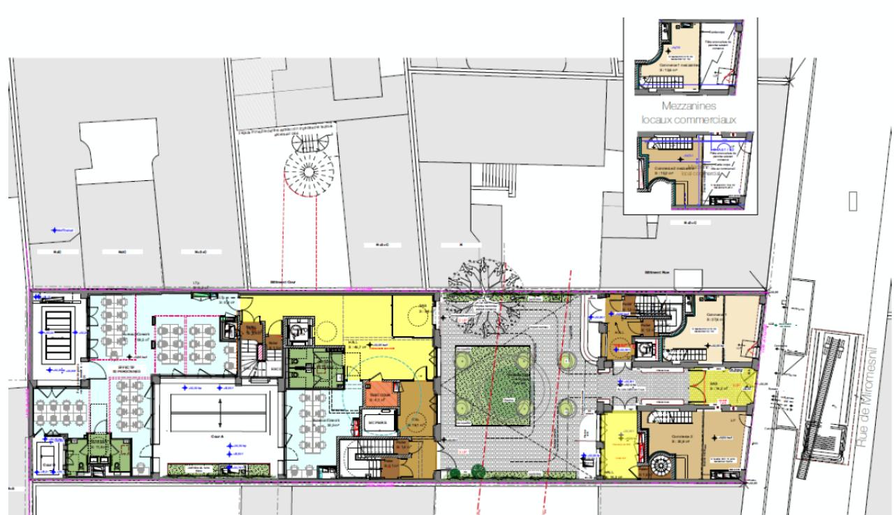
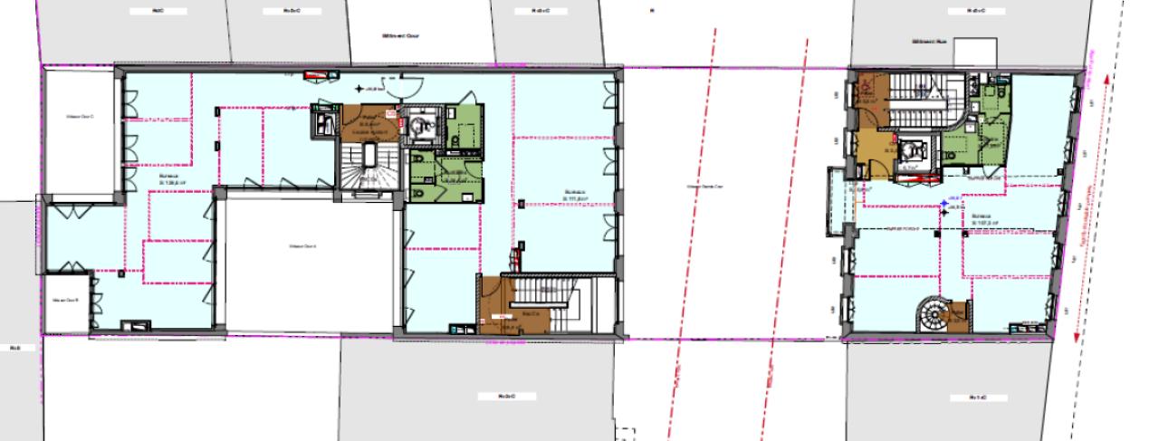
Quartier Central des Affaires, au cœur du 8ème arrondissement, entre la rue La Boétie et la rue de Penthièvre, au 33 rue de Miromesnil, nous vous proposons à la location un ensemble immobilier composé d’un hôtel particulier en R+4 sur rue et d’un immeuble « Art Déco » en R+7 avec rooftops en R+8. L ’ensemble d’une superficie d’environ 3149 m² à usage de bureaux et de commerces (Rdc sur rue) fait l’objet d’une restructuration menée par PALISSAD ARCHITECTURES avec notamment la création de 2 rooftops et la végétalisation partielle de la cour pavée
QUARTIER CENTRAL DES AFFAIRES
LOCATION DE BUREAUX
IMMEUBLE INDEPENDANT
Cour jardin
Rooftop
Terrasses
3060 m² de bureaux à louer
Livraison Septembre 2026
Services & prestations
Aménagements
-
Accès Pers. Mobilité Réduite
-
Aménagement des bureaux : Espaces Ouverts
-
Complexe Salle de réunion : En infrastructure
-
Effectif théorique : 200 personne(s) bât Arrière sur cour, 50 personne(s) bât Avant sur rue
Equipements
-
Ascenseurs : 2
-
Climatisation : Réversible
-
Production climatisation : Réseau urbain Fraîcheur de Paris
-
Source chauffage : Electrique Bâtiment sur cour, Gaz Bâtiment sur rue
-
Type de chauffage : Individuel
Prestations de service
-
Sécurité : Contrôle d'accès
Extérieurs
-
Linéaire de façade : 4,50 mètre(s)
Normes, Certifications et Labels
-
Certification : BREEAM, HQE
Type / Etat du bâtiment
-
Etat de l'immeuble : Restructuré avec PC
-
Immeuble indépendant : "Art Déco" sur cour
-
Type d'immeuble : Hôtel particulier sur rue
Informations complémentaires
-
Joli cour intérieur, Local vélo en R-2
-
Bureau traversant rue et cour
-
Loyer en attente










