




Location Bureau 1 763 m²
33600 Pessac
1 763 m²
Divisible dès 336 m²
à partir de 170 €
HT/HC/m²/an
Disponibilité : Immédiate

Maxence DUMONT
Description
Bureaux à louer à Pessac – Programme neuf INSPIRATIO au sein de Bordeaux Inno-Campus
A Pessac, Au sein de l'Europarc, ce programme neuf qui sera livré au 2ème trimestre 2025 propose des plateaux à louer. L'Immeuble « INSPIRATIO » bénéficie d’une très bonne accessibilité aux transports en commun.
Cette opération s’inscrit dans une démarche écologique et environnementale forte: matériaux biosourcés, bétons recyclés, récupération des eaux pluviales, solutions de mobilités douces ainsi qu’une grande divisibilité des plateaux.
Environnement arboré, nombreuses terrasses.
BNP Paribas Real Estate vous propose à la location des bureaux neufs à Pessac, disponibles au sein du programme INSPIRATIO, un immeuble tertiaire durable et performant, situé au coeur de l'Opération d'Intérêt Métropolitain Bordeaux Inno-Campus.
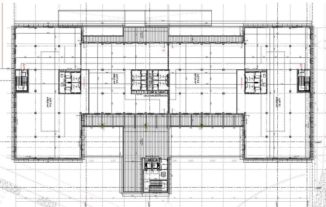
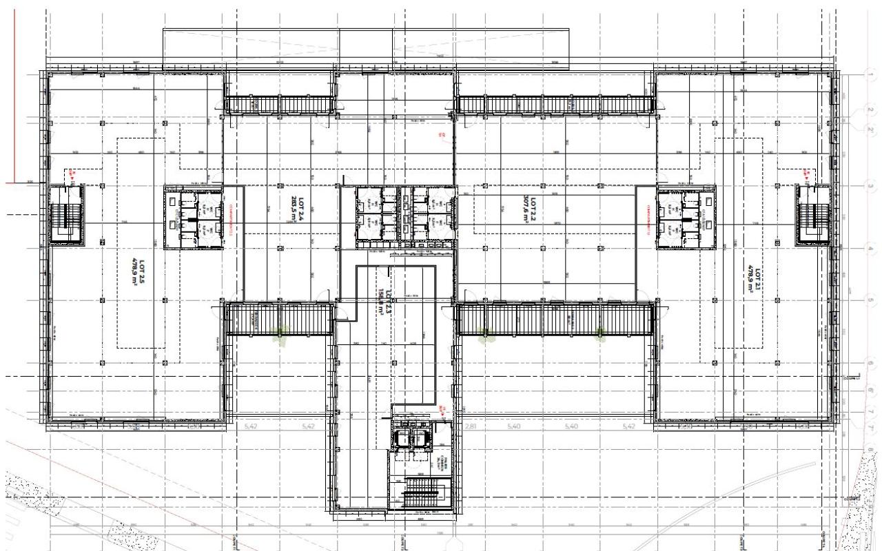
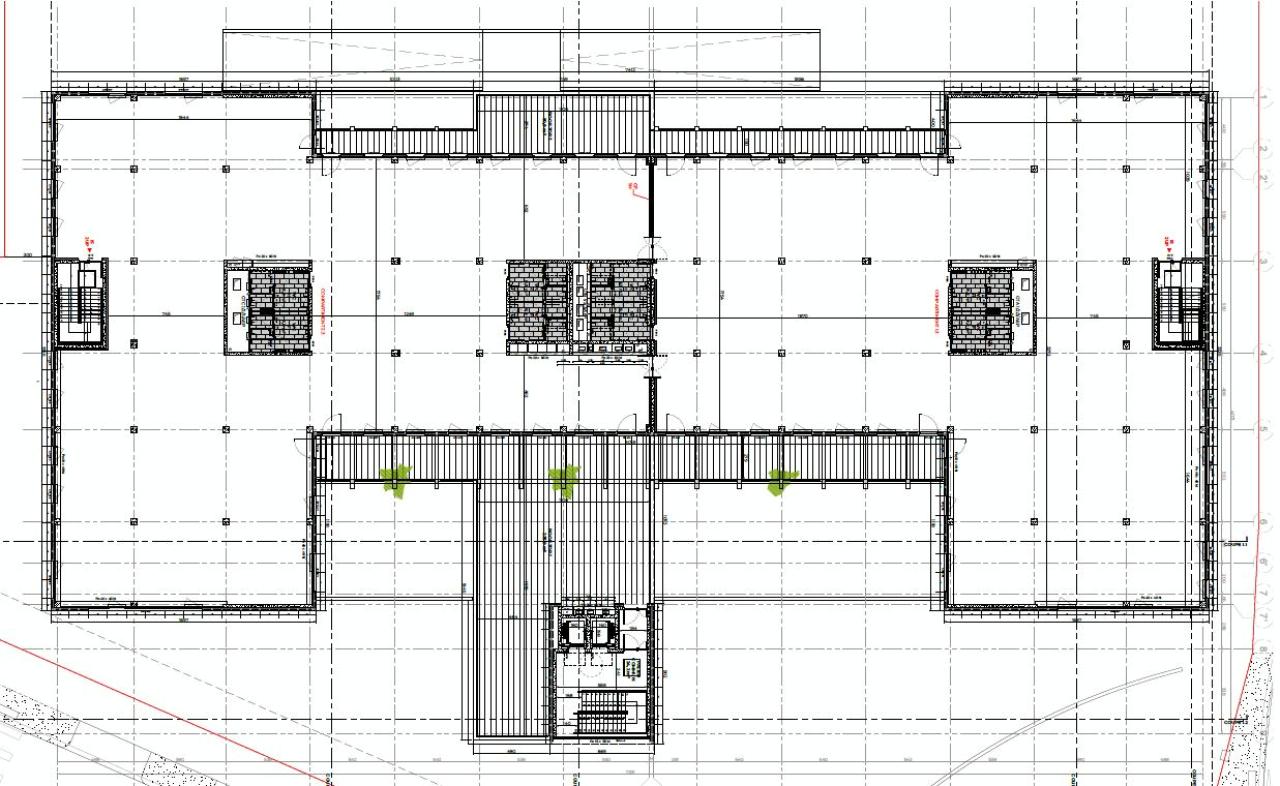
Idéal pour les entreprises à la recherche de bureaux flexibles, modernes et responsables, INSPIRATIO offre une surface totale de 3 752 m², divisible à partir de 149 m², avec des aménagements soignés et des espaces extérieurs privatifs.
Des bureaux modernes dans un immeuble éco-responsable
Pensé pour répondre aux exigences actuelles du travail hybride, du confort et de la performance énergétique, le programme INSPIRATIO se distingue par des prestations techniques de grande qualité et un engagement fort en faveur du développement durable.
Prestations clés :
- Hauteur sous plafond de 3,20 m
- Label BREEAM Very Good
- Matériaux biosourcés, béton recyclé
- Récupération des eaux pluviales
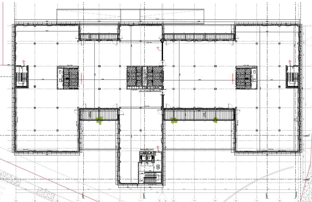
- Terrasses privatives pour chaque lot
- Locaux vélos, bornes de recharge pour véhicules électriques
- Plateaux lumineux et facilement aménageables
- Aménagements : open-space, bureaux cloisonnés, salles de réunion, hall d'accueil
Caractéristiques de l'offre :
- Type de bien : bureaux à louer à Pessac
- Surface disponible : 3 752 m² divisibles dès 149 m²
- Statut : immeuble neuf, programme livré prochainement
- Configuration : bureaux prêts à l'aménagement selon vos besoins
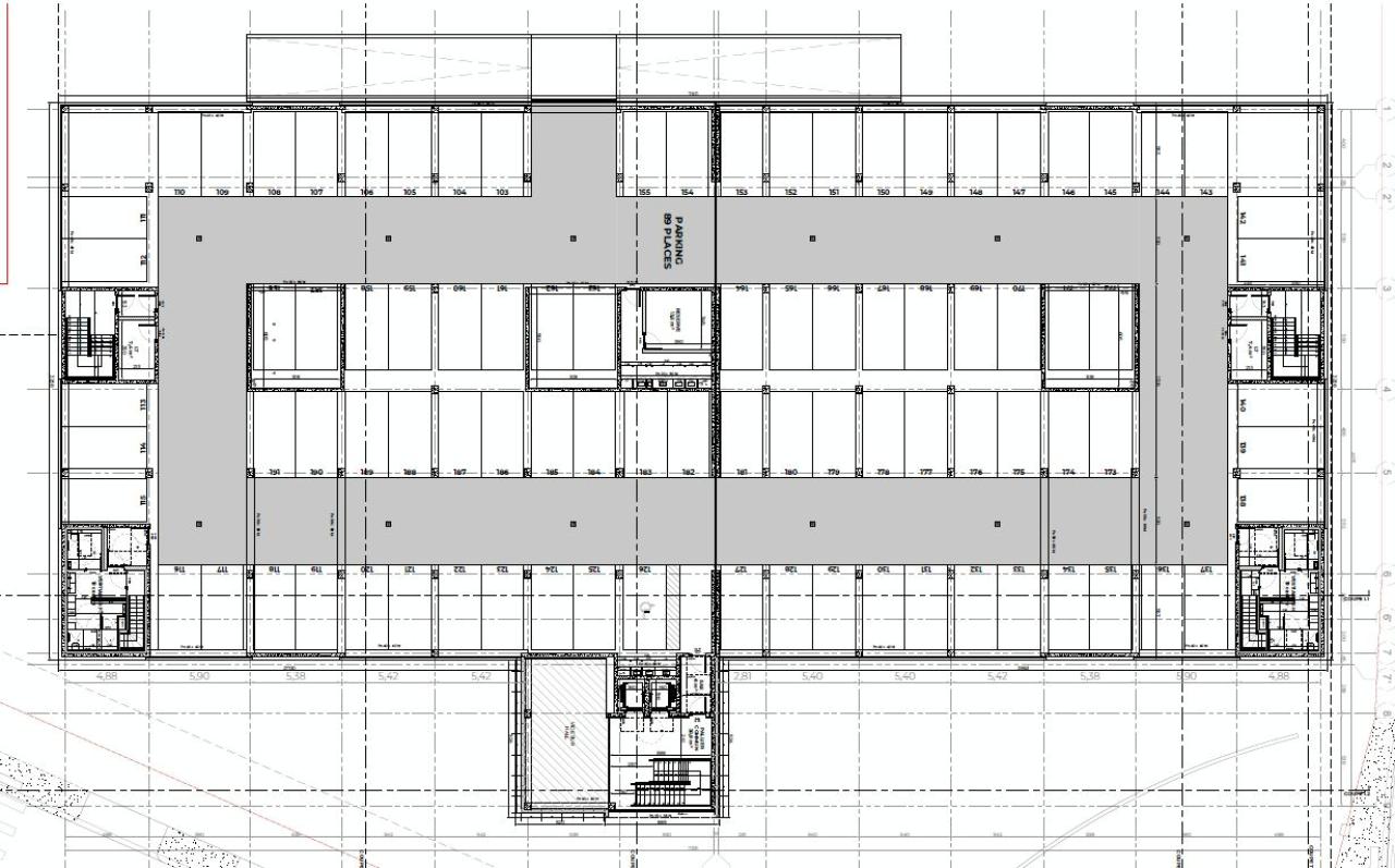
- Parkings : 127 places privatives
- Disponibilité : nous consulter
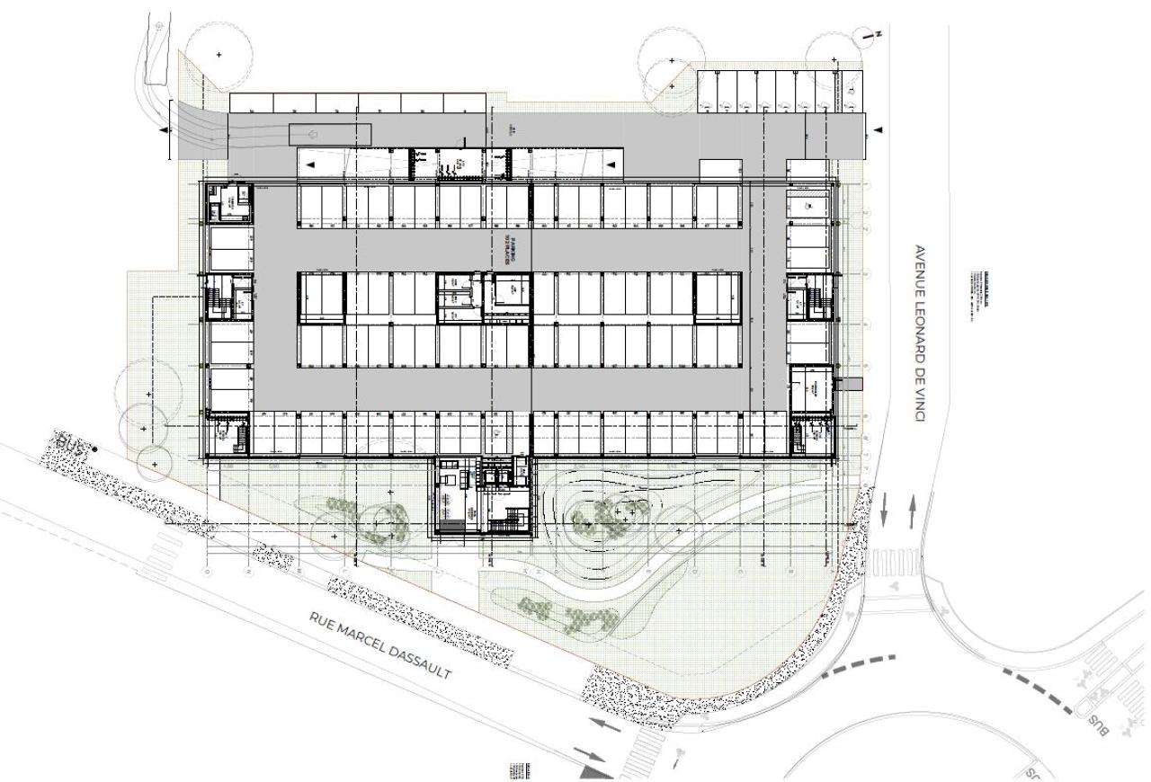
Un emplacement stratégique au coeur de Bordeaux Inno-Campus
Le programme INSPIRATIO est situé à Pessac, dans l'un des pôles tertiaires et scientifiques les plus dynamiques de la métropole bordelaise. L'environnement immédiat accueille :
- Des grandes écoles (KEDGE, ENSCBP)
- Des centres de recherche et d'innovation
- Des entreprises technologiques, médicales et numériques
- Des services de restauration, commerces et équipements sportifs
Excellente accessibilité :
- Tram B à proximité immédiate
- Bus : lignes 24, 36, 39, 44
- Rocade sortie 14 (accès rapide à Bordeaux-centre)
- Mobilités douces : pistes cyclables, stationnements vélos, bornes électriques
Cette localisation garantit à vos collaborateurs un accès fluide, qu'ils viennent de Bordeaux, Talence, Gradignan ou Mérignac.
Une solution locative souple et durable
Avec sa divisibilité dès 149 m², ses terrasses privatives, son positionnement environnemental fort et son ancrage dans un pôle d'innovation reconnu, INSPIRATIO est une solution parfaite pour :
- Les PME en développement
- Les startups technologiques
- Les entreprises du secteur de la recherche ou du médical
- Les acteurs de la formation ou de l'ingénierie
Explorez d'autres annonces similaires :
- Bureaux à louer à Pessac centre
- Bureaux à louer à Mérignac
- Location de bureaux proches du tram à Pessac
Intéressé par ces bureaux à louer à Pessac ?
Contactez dès aujourd'hui BNP Paribas Real Estate au 05 56 44 09 12 pour recevoir les plans, organiser une visite ou échanger sur les possibilités d'aménagement sur mesure.
Services & prestations
Aménagements
-
Aménagement des bureaux : Cloisonnés/Ouverts
-
Complexe Salle de réunion
-
Hall d'accueil
Prestations de service
-
Parking : 191 Places RDC et R+1 (dont 17 places aériennes)
Extérieurs
-
Terrasses - jardins : Espaces végétalisés
Normes, Certifications et Labels
-
Certification : BREEAM
Type / Etat du bâtiment
-
Etat de l'immeuble : Neuf
-
Immeuble indépendant
Informations complémentaires
-
Récupération des eaux pluviales
-
Visibilité
-
Démarche éco construction










