




108 Rue de Richelieu
75002 Paris
3 507 m²
941 €
HT/HC/m²/an
Disponibilité : T1 2026

Pascaline HARRELCOURTES
Description
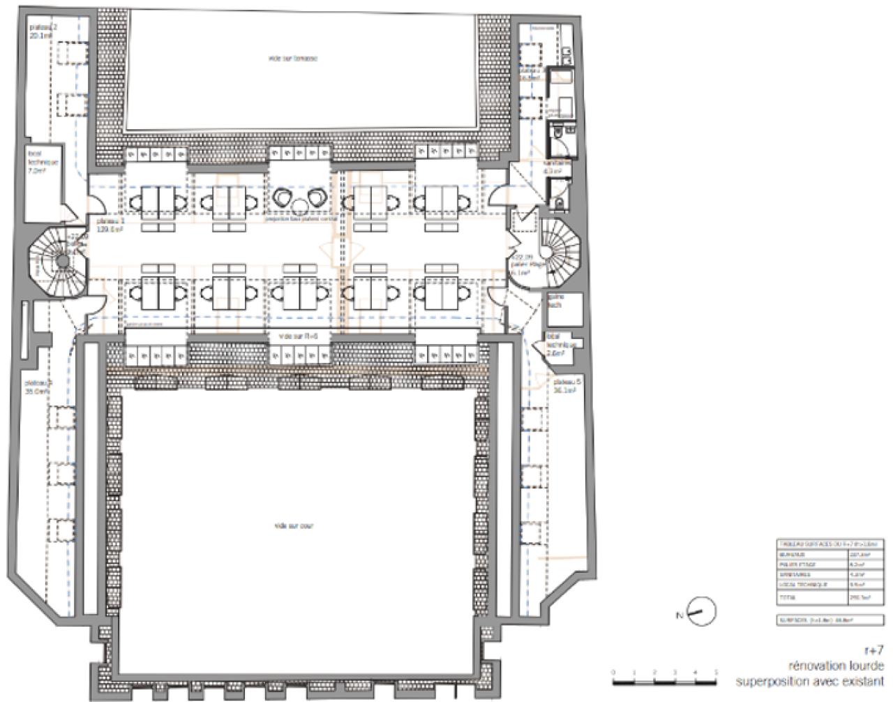
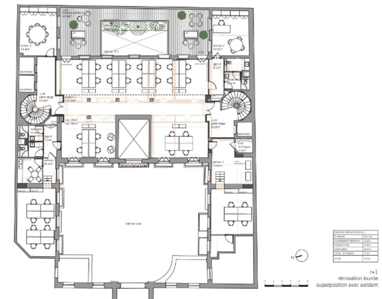
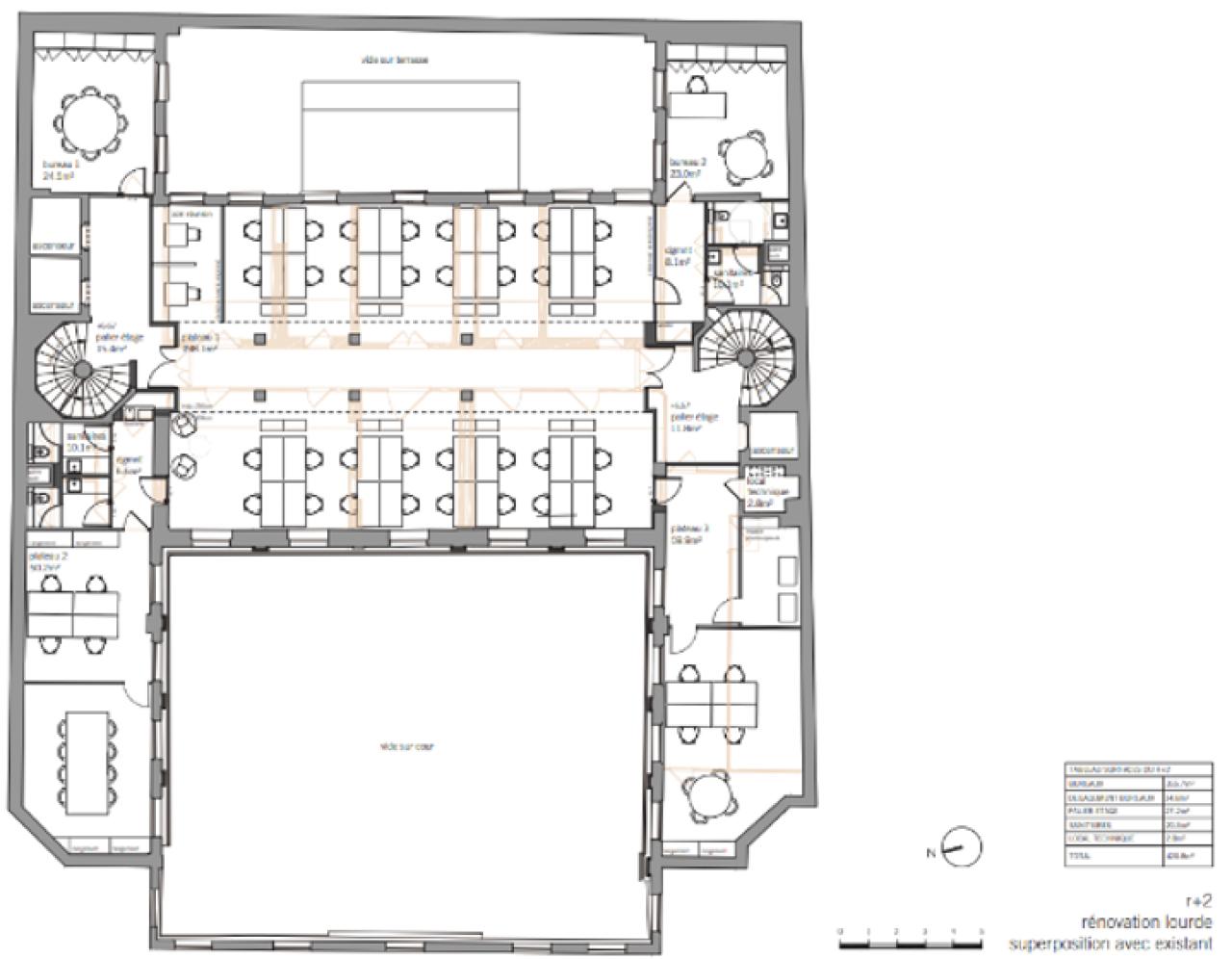
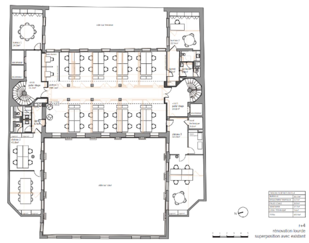
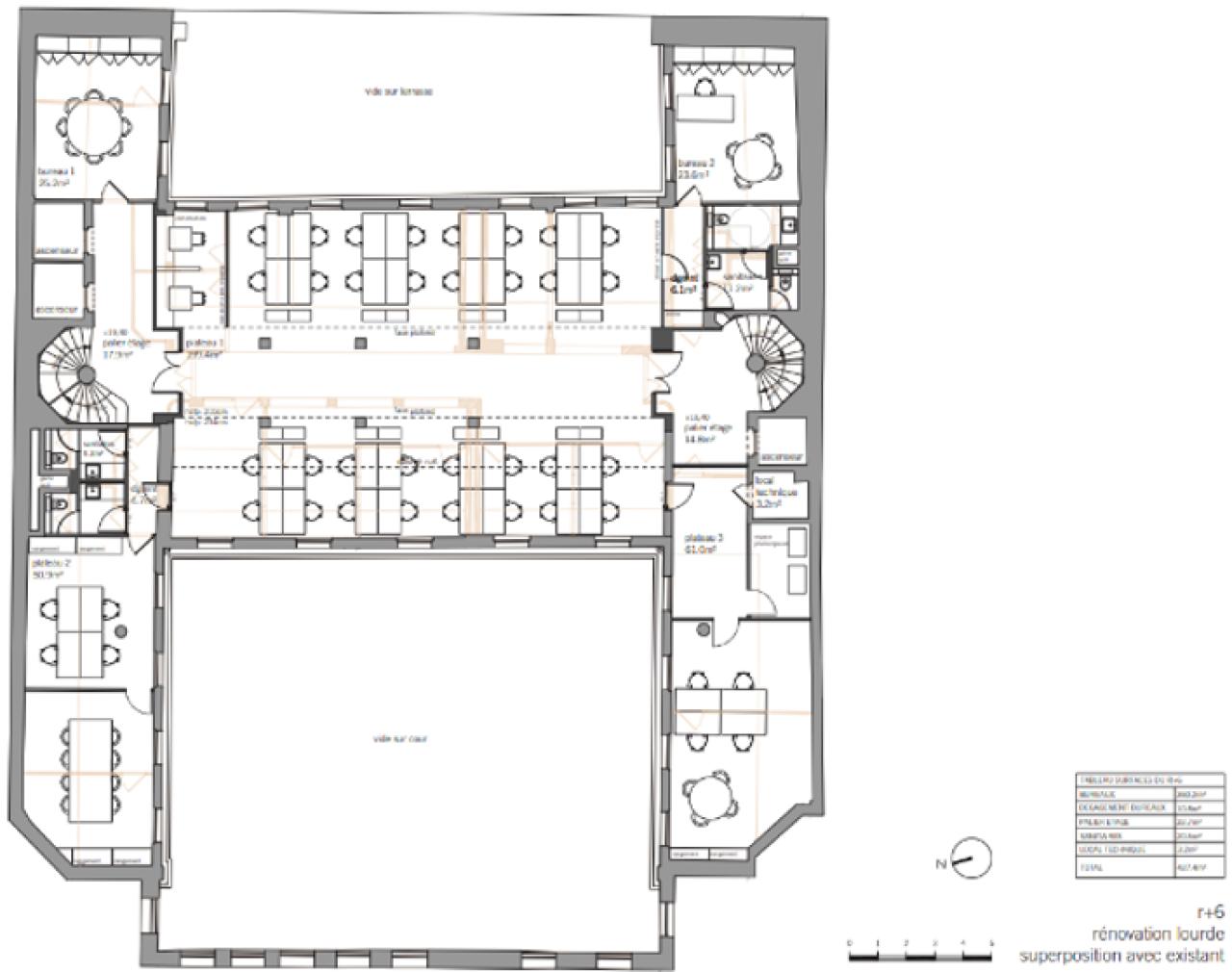
Paris 2ème, à toute proximité des Grands Boulevards, un ensemble indépendant de 3 506 m² de bureaux et archives répartis du RDC au R+7 sur 2 niveaux de sous-sols. L'accès se fait par un porche menant à une cour intérieure pavée. Les bureaux s'organisent en "U" autour de cette cour.
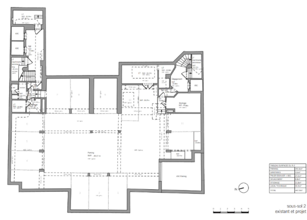
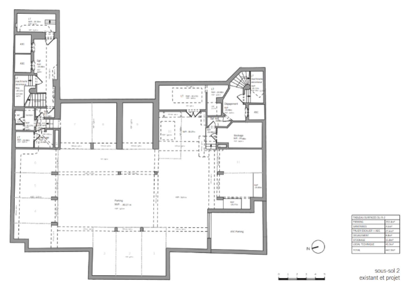
Paris 2ème, entre la Bourse et les Grands Boulevards, à deux pas des boulevards Italiens, Haussmann et Montmartre, nous vous proposons à la location cet immeuble situé en cœur d’ilôt développant 3 506 m² de bureaux répartis du rez-de-chaussée au R+7 et un 1er sous-sol.
Le 1er sous-sol accueille des salles de réunion ainsi qu’une salle de conseil. Le 2ème sous-sol abrite des emplacements de parkings ainsi que des archives.
L’ensemble fera l’objet d’une rénovation.
Cour intérieure totalement privative.
PRESTATIONS :
- 3 ascenseurs dont un duplex
- Climatisation
- Chauffage CPCU
- CTA double flux
- GTB
SERVICES :
- Parkings
- Salles de réunions au R-1
- Cour privative
- Terrasses au R+1 à l’arrière de l’immeuble
- Patio intérieur face au hall d’ accueil
Services & prestations
Aménagements
-
Accueil : Accès sous porche vers cour intérieure privative
-
Accès Pers. Mobilité Réduite
-
Aménagement des bureaux : Cloisonnés/Ouverts
-
Complexe Salle de réunion : R-1
-
Effectif théorique : 400 personne(s)
-
Hall d'accueil : Indépendant donnant sur le patio
Equipements
-
Ascenseurs : 3 Dont 1 avec accès handicapés
-
Climatisation : Réversible
-
Distribution climatisation : Ventilo convecteur en allège
-
Eclairage Bureaux : Luminaires encastrés et suspendus
-
Faux plafond
-
Gestion technique centralisée : Pilotant ventilation mécanique
-
Monte-charge : 1 1 monte voitures dans parking
-
Sol bureaux : Moquette
-
Source chauffage : Géothermie CPCU
-
Type de chauffage : Urbain
Prestations de service
-
Parking : 14 Places +10places au 104 rue Richelieu
Extérieurs
-
Terrasses - jardins : Patio au R-1
Normes, Certifications et Labels
-
Certification : HQE
Type / Etat du bâtiment
-
Etat de l'immeuble : Restructuré avec PC
-
Immeuble indépendant
-
Orientation façade : RUE & COUR
Informations complémentaires
-
Cour pavée privative
-
Terrasse au R+1










