




Location Bureau 900 m²
75019 Paris
900 m²
Divisible dès 118 m²
à partir de 268 €
HT/HC/m²/an
Disponibilité : Immédiate

Sophie HUYNH
Description
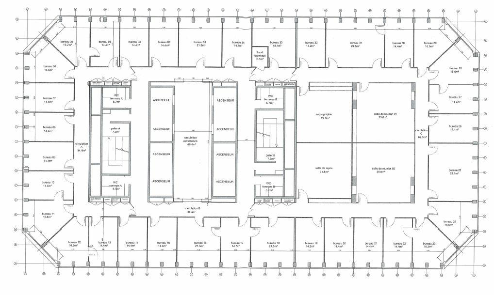
BNP PARIBAS REAL ESTATE vous propose à la location : deux surfaces de bureaux traversantes et lumineuses divisibles à partir de 117 m².
Loyer très compétitifs :
* 121 900€ HT/HC/an incluant 6 emplacements de parkings pour le local de 448 m²
* 126 000€ HT/HC/an incluant 4 emplacements de parkings pour le local de 452 m²
L'immeuble est idéalement situé entre la Porte de Pantin et la Gare du Nord. Métro à 400 m de l'immeuble (ligne 5)
Les charges comprennent le chauffage, la climatisation, le nettoyage des parties communes, ascenseurs, maintenance chauffage, vidéo-surveillance, eau froide.
# BUREAUX A LOUER PARIS 19
# PORTE DE PANTIN
# AVENUE JEAN JAURES
Excellent rapport qualité-prix : :
* local de 448 m² : loyer annuel de 121 900 HT/HC (incluant 6 emplacements de parking) soit 10 158 HT/HC/mois.
*local de 452 m² : loyer annuel de 126 000 HT/HC/an (incluant 4 emplacements de parking) soit 10 500 HT/HC/mois.
Surfaces rationnelles permettant un aménagement flexible en open space comme en cloisonné
ACCES : Métro Ourcq ou Porte de Pantin (ligne 5)
Tramway T3b - Porte de Pantin
Porte de Pantin
EQUIPEMENTS ET SERVICES :
accueil
air rafraîchi par ventilo-convecteurs
chauffage CPCU
parkings en sous-sol
Services & prestations
Aménagements
-
Accès Pers. Mobilité Réduite
-
Aménagement des bureaux : Cloisonnés modulables
Equipements
-
Ascenseurs
-
Climatisation : Air rafraîchi
-
Câblage informatique : RJ45
-
Faux plafond
-
Sol bureaux : Moquette
-
Source chauffage : CPCU
Type / Etat du bâtiment
-
Etat de l'immeuble : Etat d'usage
-
Etat des locaux : Etat d'usage
Informations complémentaires
-
Fibre optique










