- Paramétrer l'affichage
Actualiser la recherche quand je déplace la carte
Lorsque cette option est activée, les résultats de recherche s'actualisent en fonction du positionnement de la carte.Paramétrer la zone de distance
- Paramétrer la zone
Lorsque cette option est activée, une zone de distance s'affiche autour d'un point sélectionné.
Personnalisez et délimitez la zone de distance en fonction du moyen de locomotion. Par défaut, la zone est programmée à 5 min à pieds.
Moyen de locomotion :
en voitureen transportsà véloà piedsTemps de trajet :
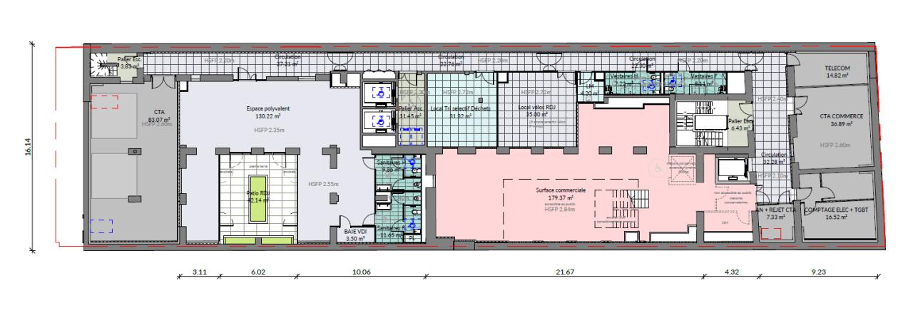
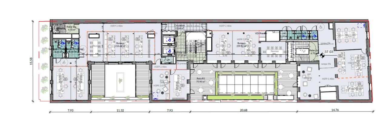
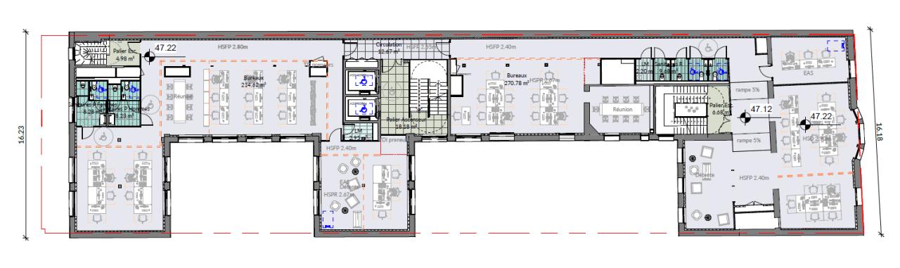
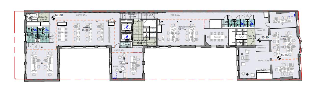
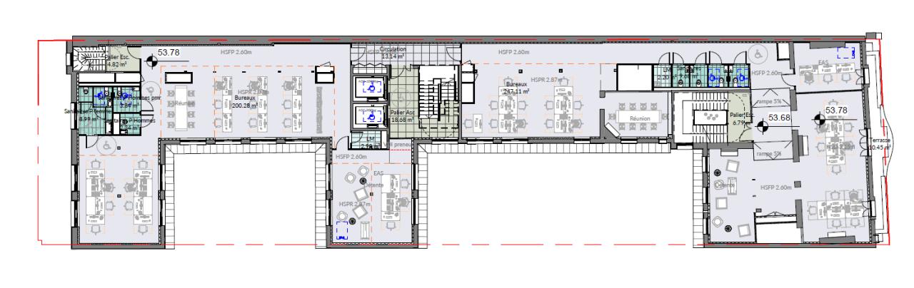
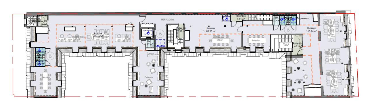
Location Bureaux Saint-Georges
12 bureaux à louer et 28 à proximité.
Comparateur

Location Bureau Saint-Georges Paris : tout savoir
La location de bureaux à Saint-Georges est un excellent choix pour venir établir son activité dans un quartier dynamique et facile d'accès grâce aux transports en commun. Situé dans le 9e arrondissement de Paris, Saint-Georges abrite des salles de spectacle renommées et des musées qui attirent de nombreux visiteurs. Le 9ème est composé de 3 autres quartiers : La Chaussée-d'Antin, Le Faubourg-Montmartre et Rochechouart.
Pourquoi louer un bureau à Saint-Georges ?
Le tissu économique de Saint-Georges est très varié. Placé tout près des commerces et des grands magasins de Haussmann-Opéra, le quartier Saint-Georges à Paris possède un vaste parc de bureaux. Les secteurs de la finance, des assurances, mais aussi de la net économie sont fortement implantés dans cette zone prisée de Paris intra-muros. Si les commerces ou les restaurants s'installent volontiers dans cette partie du 9e arrondissement de Paris, les agences de communication et de conseil y trouvent également un environnement favorable. Les start-up privilégient elles aussi une location de bureaux à Saint-Georges. Ceci s'explique par leur besoin d'espace, que peuvent leur offrir les hauts immeubles de la zone. Compris dans le quartier central des affaires, QCA pour les professionnels, Saint-Georges est un vrai tremplin pour les jeunes sociétés qui souhaitent se fixer à Paris.
Les avantages d'une location de bureaux à Saint-Georges
Entouré par la place de Clichy et la place Pigalle au nord, bordé par la rue Saint-Lazare au sud et délimité par la rue des Martyrs à l'est, Saint-Georges propose un vaste secteur où s'installer. Louer un bureau à Saint-Georges offre l'avantage de pouvoir choisir une rue qui répond aux besoins de son activité. Les professionnels du divertissement, par exemple, se tournent généralement vers des bureaux à louer du côté de Pigalle. Très animée, cette partie de Saint-Georges abrite les emblématiques Moulin Rouge, Trianon ou encore La Cigale. Saint-Georges compte nombre d'espaces résidentiels calmes, recherchés par les entreprises du numérique ou les sociétés de conseil. Ces secteurs bien desservis par les transports en commun sont aussi un excellent choix pour les professions libérales réglementées, comme les avocats, les comptables ou encore les médecins. De plus, le quartier de Saint-Georges se situe à proximité du 1er, 2ème et 10ème arrondissement de Paris.
Louer un bureau à Saint-Georges, près des transports en commun
Le quartier de Saint-Georges offre un large éventail de moyens de transports en commun. Ceci est un critère de choix pour toutes les recherches de locations de bureaux à Paris à Saint-Georges. En effet, cette partie du 9e offre un accès rapide à quatre stations de métro, une vingtaine de lignes de bus, et plusieurs gares RER. Idéal lorsque l'on vit dans un autre arrondissement de Paris, il est possible de rejoindre le bureau loué à Saint-Georges en empruntant le RER A ou les lignes 7, 8 ou 9 du métro parisien. Cette proximité avec les transports facilite ainsi tous les déplacements à travers la capitale ou en dehors. Pour se rendre vers des destinations plus éloignées, les gares Saint-Lazare à l'ouest, et Paris-Est ou Paris-Nord à l'est, permettent de se déplacer en train régional ou à bord d'un TGV.














































































































































































































































































































































































































































































































































































