- Paramétrer l'affichage
Actualiser la recherche quand je déplace la carte
Lorsque cette option est activée, les résultats de recherche s'actualisent en fonction du positionnement de la carte.Paramétrer la zone de distance
- Paramétrer la zone
Lorsque cette option est activée, une zone de distance s'affiche autour d'un point sélectionné.
Personnalisez et délimitez la zone de distance en fonction du moyen de locomotion. Par défaut, la zone est programmée à 5 min à pieds.
Moyen de locomotion :
en voitureen transportsà véloà piedsTemps de trajet :
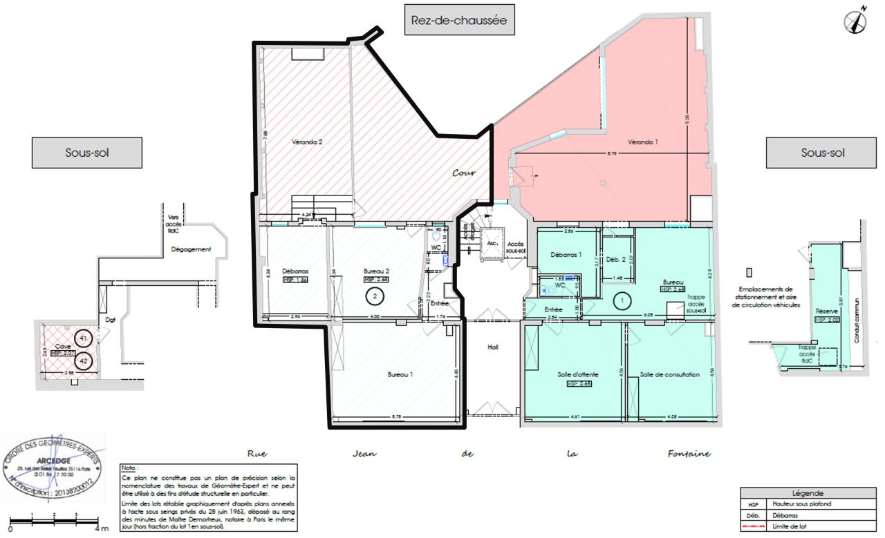
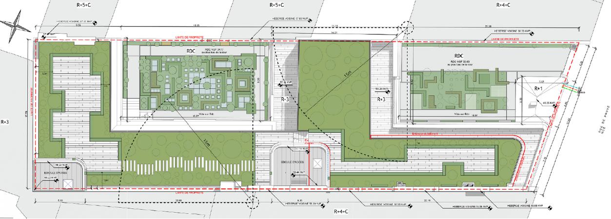
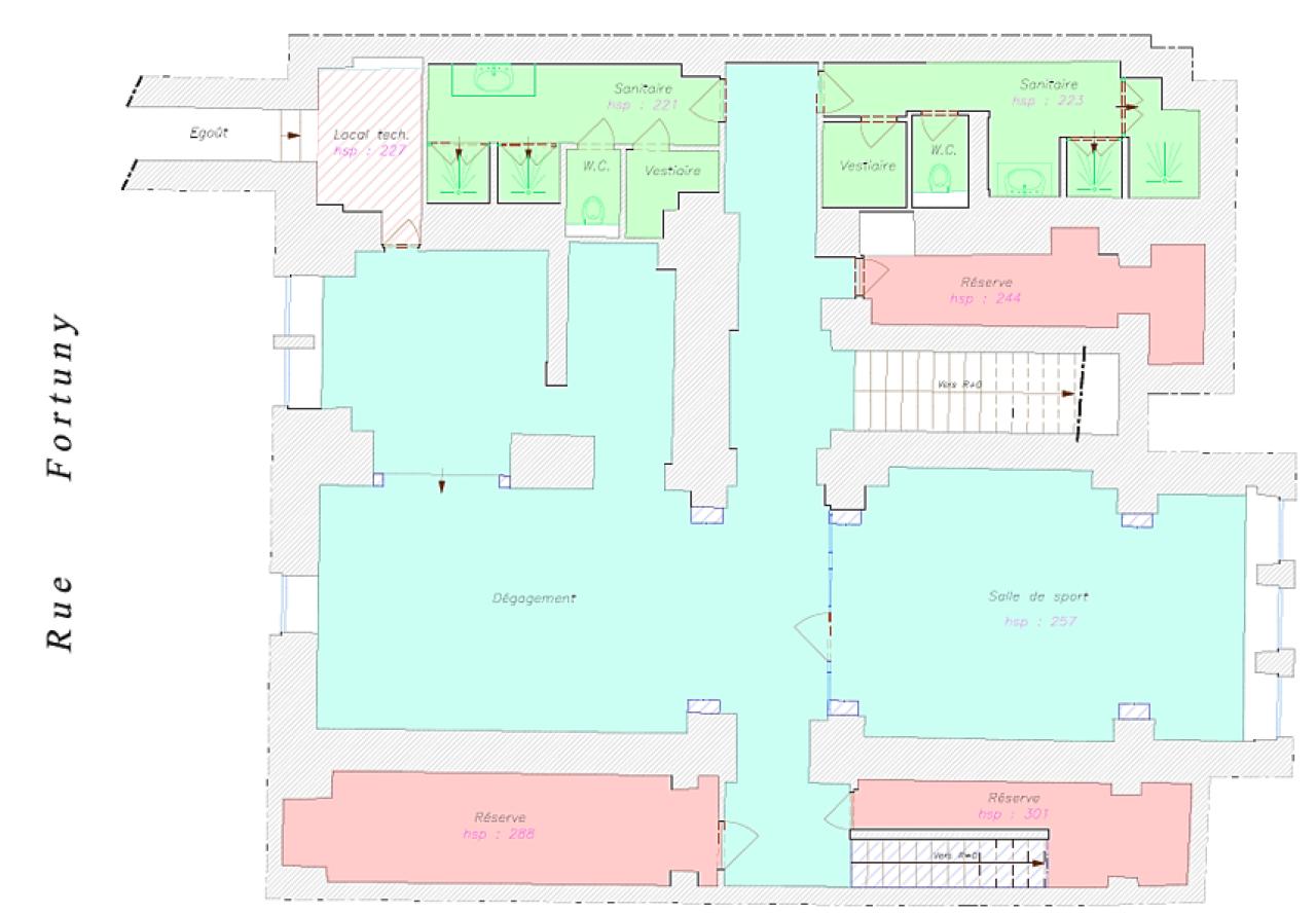
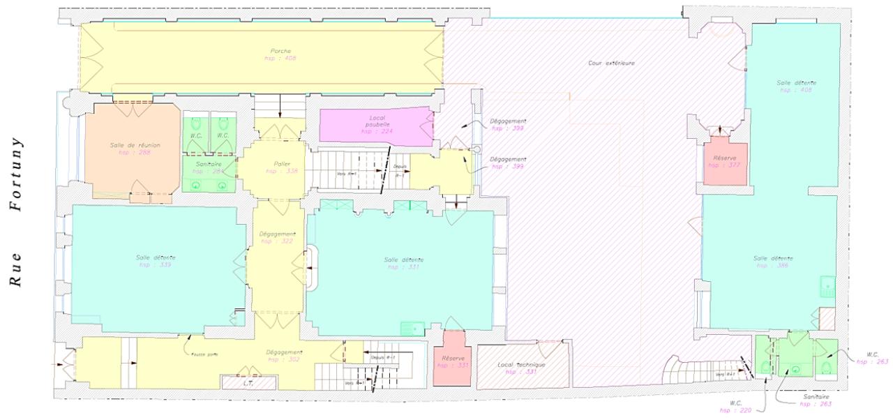
Vente Bureaux Paris (75000)
62 bureaux à vendre
Comparateur

Achat / vente bureaux Paris 75 - Bureau à vendre : Tout savoir
Pour une entreprise bénéficiant d'une maturité suffisante et d'une vision claire sur sa stratégie de croissance, acheter des bureaux à Paris représente une option à considérer.
Pourquoi acheter des bureaux à Paris ?
Une entreprise qui recherche des bureaux à vendre à Parisrépond généralement à une stratégie patrimoniale. En effet, devenir propriétaire d'un immeuble tertiaire dans la capitale ou de surfaces de bureaux à Paris permet à l'entreprise de se constituer un patrimoine immobilier qui apparaîtra à l'actif de son bilan.
Acheter des bureaux à Paris valorisera d'autant plus le patrimoine immobilier de l'entreprise s'il s'agit de produits tertiaires neufs, bien placés au sein de quartiers d'affaires parisiens recherchés tels que Montparnasse, Paris QCA ou Gare de Lyon. Par ailleurs, acheter des bureaux à Paris ou ailleurs en Ile-de-France offre à l'entreprise une meilleure maîtrise de ses coûts.
Où prospecter pour trouver des bureaux à vendre à Paris ?
Les entreprises à la recherche de bureaux à vendre à Paris pourront tout d'abord prospecter sur Paris QCA. Les quartiers de St Lazare, Opéra, Madeleine, Haussmann ou de l'Etoile disposent en effet de belles opportunités pour acheter des bureaux de standing à Paris.
La localisation fait partie des critères de choix les plus importants pour les entreprises à la recherche de bureaux en vente à Paris. Car aujourd'hui pour recruter et retenir les talents, il faut désormais un immeuble séduisant offrant notamment une adresse parisienne stratégique, au cœur des quartiers les plus recherchés de la capitale. Un bureau fait également partie de l'image de l'entreprise et son choix est donc un critère important. Les prestations et le cachet sont des critères de choix, tout comme la proximité d'une station ou de lignes de métro, ou encore d'aéroports et gares nationales pour faciliter les déplacements des équipes.
Pour séduire les collaborateurs et leur proposer un environnement de travail de qualité, les entreprises qui souhaitent acheter des bureaux à Paris choisiront principalement des surfaces tertiaires à vendre situées intramuros, dans des quartiers parisiens bien desservis et dotés de commerces de proximité. La centralité s'impose en effet comme un vecteur d'attractivité mais participe par ailleurs à véhiculer l'image de l'entreprise.
De nombreuses opportunités existent pour trouver des bureaux à vendre dans la capitale, tous les arrondissements regorgent de biens disponibles à la vente, notamment des surfaces de bureaux que vous pourrez trouver facilement dans les quartiers suivants :
- Vente bureaux Paris 1
- Vente bureaux Paris 2
- Vente bureaux Paris 3
- Vente bureaux Paris 4
- Vente bureaux Paris 5
- Vente bureaux Paris 6
- Vente bureaux Paris 7
- Vente bureaux Paris 8
- Vente bureaux Paris 9
- Vente bureaux Paris 10
- Vente bureaux Paris 11
- Vente bureaux Paris 12
- Vente bureaux Paris 13
- Vente bureaux Paris 14
- Vente bureaux Paris 15
- Vente bureaux Paris 16
- Vente bureaux Paris 17
- Vente bureaux Paris 18
- Vente bureaux Paris 19
- Vente bureaux Paris 20
Les locaux commerciaux en vente à Paris sont parfois difficiles à trouver selon le format désiré. Certains professionnels recherchent un local professionnel hybride, contenant à la fois des entrepôts et des bureaux ou disposant d'une surface de bureaux spécifique avec un accès en rez-de-chaussée, ou encore un accès plus ou moins éloigné de la rue... Chaque entreprise a défini ses critères, pour ces raisons un accompagnement adapté par nos équipes d'experts en immobilier permettrait de trouver la meilleure opportunité. Plus qu'un simple local commercial, l'achat d'un bureau ou de locaux professionnels doit être en ligne avec la stratégie, l'activité et l'image de l'entreprise, l'implication à long terme est donc différente de la location de bureau.
Pour les entreprises qui souhaitent acheter des bureaux à Paris Hors QCA, il existe des opportunités dans de nombreux quartiers de la capitale : on pourra ainsi trouver des bureaux neufs à vendre dans le 12ème arrondissement, à Bercy ou dans le quartier de la gare de Lyon. Le 17ème arrondissement de Paris propose également des surfaces de bureaux neufs à vendre sur le quartier en mutation de Clichy-Batignolles.
Egalement en pleine transformation, le quartier de la gare d'Austerlitz dispose lui aussi de beaux produits tertiaires neufs soit autant d'opportunités à saisir pour les professionnels qui souhaitent acheter des bureaux à Paris.


















































































































































































































































































































































































































