




93 Boulevard Vincent Auriol
75013 Paris
127 m²
1 244 600 €
HT/HD
Disponibilité : Nous consulter

Benjamin HECTOR
Description
A proximité du métro Chevaleret, nous vous proposons d'acquérir une surface P.M.R. dans un immeuble IGH.
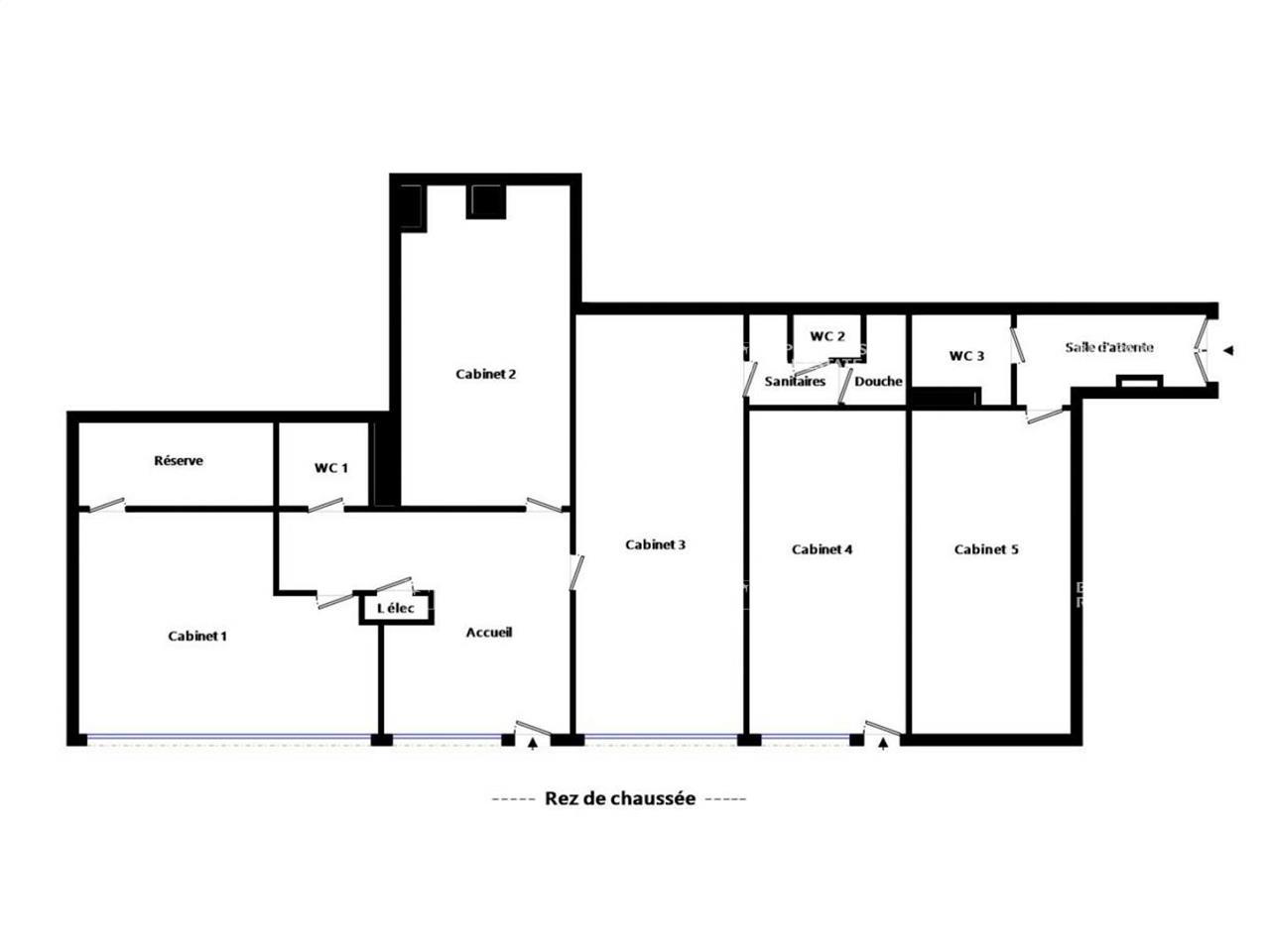
Les locaux offrent un plan efficace avec cloisonnement léger, accueil, espaces ouverts et cloisonnés, belle hauteur sous plafond, sanitaires et vestiaires.
Prix de vente : 9 800 €/m² NV
BNP Real Estate vous propose d’acquérir des locaux PMR offrant une bonne souplesse d’aménagement d’une surface d’environ 127 m² au rez-de-chaussée dans le 13ème arrondissement de Paris.
Vous y retrouverez deux entrées indépendantes, un accueil avec borne et espace d’attente, des espaces ouverts et cloisonnés (cloisonnement léger) et d’une belle hauteur sous plafond.
De plus, l’actif possède des sanitaires et vestiaire de douche, du parquet et un faux plafond avec luminaires encastrés.
Les locaux sont idéalement situés à 2 minutes à pied du métro Chevaleret, à 9 minutes à pied du métro Place d’Italie et à 8 minutes en voiture de la Porte d’Ivry.
N’hésitez plus et venez découvrir ce bien.
Services & prestations
Aménagements
-
Accueil : Hôtesses et espace d'attente
-
Accès Pers. Mobilité Réduite : Locaux P.M.R.
-
Aménagement des bureaux : Cloisonnés/Ouverts Cloisonnement léger
-
Sanitaires
Equipements
-
Douche : Vestiaires
-
Eclairage Bureaux : Luminaires encastrés
-
Faux plafond : Dal. fibres minéral.
-
Sol bureaux : Parquet
Hauteurs
-
Hauteur sous-plafond : Belle hauteur
Prestations de service
-
Sécurité
Type / Etat du bâtiment
-
Etat de l'immeuble : Seconde main
-
Immeuble copropriété










