- Paramétrer l'affichage
Actualiser la recherche quand je déplace la carte
Lorsque cette option est activée, les résultats de recherche s'actualisent en fonction du positionnement de la carte.Paramétrer la zone de distance
- Paramétrer la zone
Lorsque cette option est activée, une zone de distance s'affiche autour d'un point sélectionné.
Personnalisez et délimitez la zone de distance en fonction du moyen de locomotion. Par défaut, la zone est programmée à 5 min à pieds.
Moyen de locomotion :
en voitureen transportsà véloà piedsTemps de trajet :
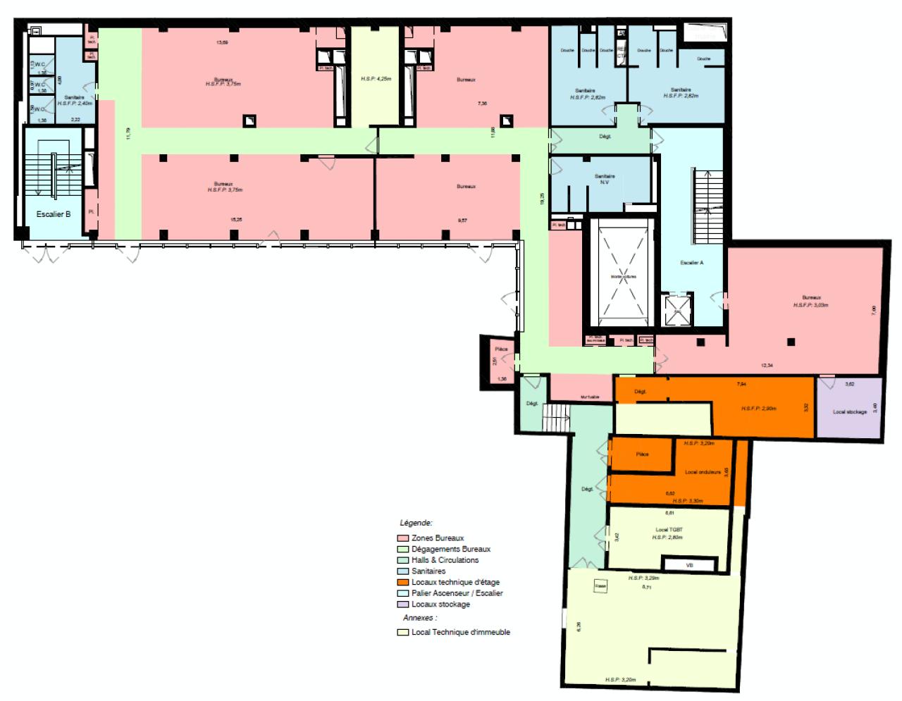
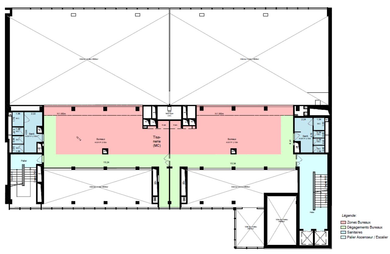
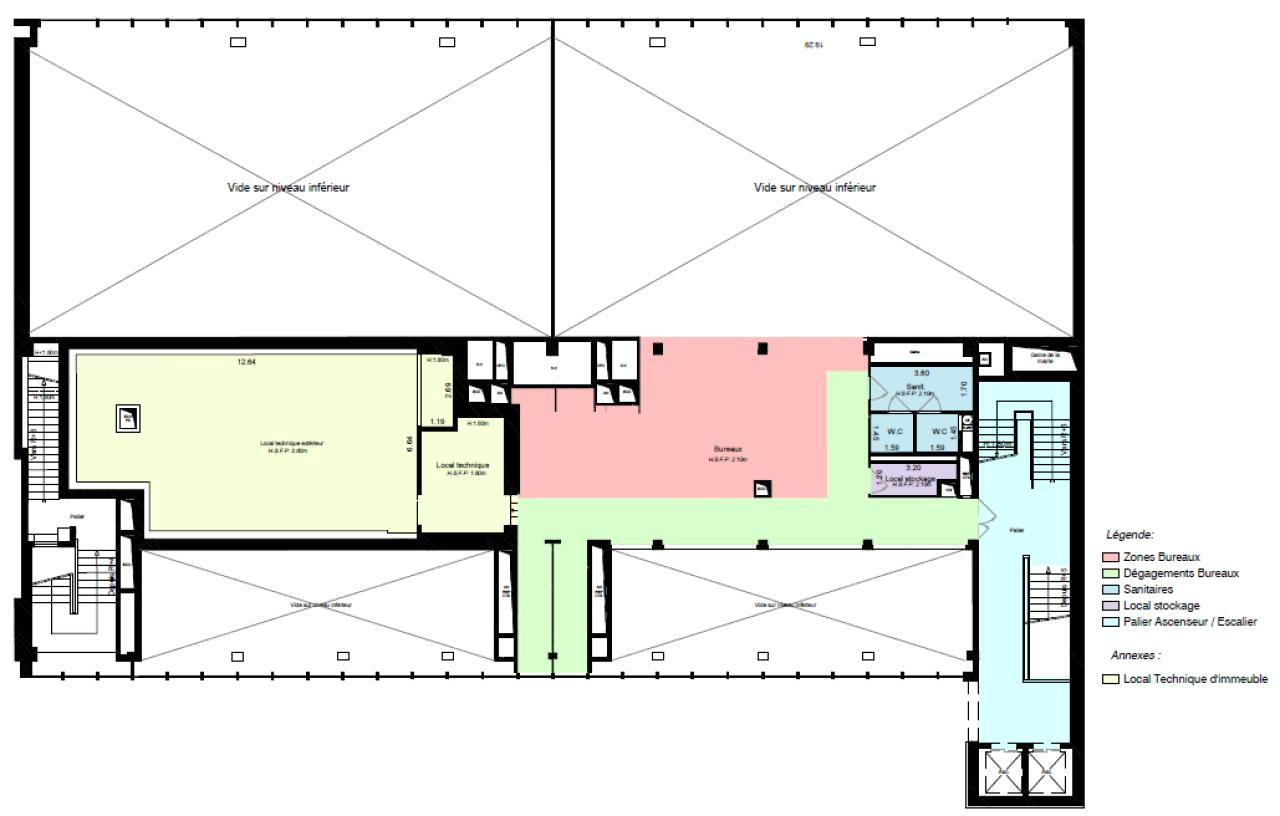
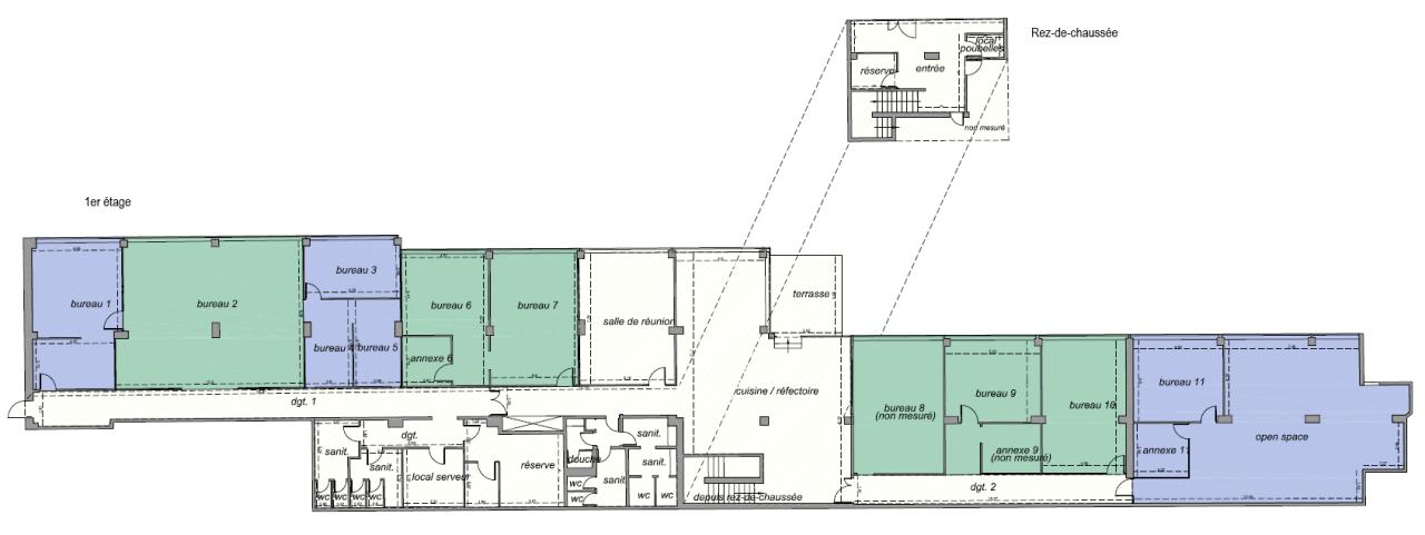
Vente Bureaux La Porte-Dauphine
1 bureau à vendre et 39 à proximité.
Comparateur

Achat / vente Bureau La Porte-Dauphine Paris : tout savoir
Opter pour la vente de bureaux à Paris La Porte-Dauphine permet de vous implanter dans un environnement dynamique, tourné vers le commerce, le service, les loisirs et la culture, dans l'ouest de la capitale. Desservi par un réseau de transports performant, le quartier de la Porte-Dauphine, au cœur du QCA (quartier central des affaires), profite d'un accès privilégié, au sein du 16e arrondissement et sur l'ensemble du territoire parisien.
Bureau à vendre à Paris-Porte-Dauphine, du Trocadéro au bois de Boulogne
L'achat d'un bureau à Paris Porte-Dauphine, c'est la garantie d'exercer votre activité dans un quartier stratégique de la rive droite, limitrophe de Neuilly-sur-Seine, du 17e et du 8e arrondissement. Inscrit sur un axe Trocadéro - bois de Boulogne , ce quartier résidentiel et commerçant est renommé pour son dynamisme économique axé sur l'immobilier, la location de biens, les services aux entreprises et les activités financières.
Chercher un bureau à vendre à La Porte-Dauphine, c'est choisir d'ancrer son entreprise dans le nord-ouest du 16e arrondissement, à proximité du la place de l'Etoile et des Champs-Elysées. Formant un parallélépipède avec aux angles, la porte de Neuilly, la porte Maillot, la place du Trocadéro et la porte de la Muette, le quartier de la porte Dauphine s'étend sur une superficie d'un peu plus de 141,4 hectares où vivent 27 400 habitants environ. Il comprend, à l'instar du quartier de Chaillot et du quartier de la Muette, une section du Bois de Boulogne.
Pourquoi sélectionner un bureau à vendre à Paris Porte-Dauphine ?
Opter pour un bureau à vendre à Paris Porte-Dauphine, c'est envisager de s'installer dans un quartier de l'ouest de la capitale, bordé au nord par les boulevards Maurice Barres et Maillot, à l'est par les avenues de Malakoff et Raymond Poincaré et au sud par les rues Henri Martin et Georges Mandel.
Prioriser l'achat de bureaux à Paris Porte-Dauphine, c'est miser sur la notoriété d'un quartier emblématique où se côtoient les prestigieuses avenue Victor Hugo et avenue Foch, conduisant de l'arc de Triomphe au bois de Boulogne. C'est aussi bénéficier de la visibilité de lieux de premier plan comme le lycée Janson de Sailly ou l'université Paris-IX Dauphine, les ambassades de Russie, de Namibie ou de Mauritanie ainsi que de sites culturels incontournables, tels que la fondation Louis-Vuitton, et de hauts-lieux touristiques à l'image des Champs-Elysées ou du jardin d'acclimatation.
Acheter un bureau à Paris Porte-Dauphine pour rayonner aux quatre coins de la capitale
Le quartier est desservi par les lignes de métro M1, M2 et M6, via les stations Porte Maillot, Victor Hugo, Porte Dauphine, Trocadéro et Rue de la Pompe, offrant au quartier un accès privilégié aux grandes gares.
Sélectionner un bureau à vendre à Paris Porte-Dauphine, c'est aussi bénéficier d'un réseau de bus performant et de la proximité des gares RER C (Neuilly-Porte-Maillot, Avenue-Foch et Henri-Martin) permettant de rejoindre le quartier de la Défense en 40 minutes et l'aéroport de Paris-Orly en moins d'une heure.























































































































































































































































































































































































































































